
Förverkliga drömmen om ett sjönära boende i natursköna Rimforsa – på en sluttning ner mot vackra sjön Åsunden. Här erbjuds stor valfrihet till den som önskar bygga nytt hus i ett av Rimforsas mest attraktiva områden. Byggrätten medger byggrätt om 250 kvm per fastighet på tomt 10 och 11. Fritt val av hus, tomterna är inte knutna till någon husleverantör. Kontakta ansvarig mäklare för mer information!
Förverkliga drömmen om ett sjönära boende i natursköna Rimforsa – på en sluttning ner mot vackra sjön Åsunden. Här erbjuds stor valfrihet till den som önskar bygga nytt hus i ett av Rimforsas mest attraktiva områden. Byggrätten medger byggrätt om 250 kvm per fastighet på tomt 10 och 11. Fritt val av hus, tomterna är inte knutna till någon husleverantör. Kontakta ansvarig mäklare för mer information!
Hela området består av tre etapper. Etapp ett och två, 25 tomter, är slutsålda och inflyttade.
Etapp 3 omfattar11 exklusiva villatomter – naturnära och harmoniskt läge.
11 byggklara tomter i söderläge, med en fantastisk placering söder om äppelträdsallén som leder till den charmiga herrgården. Här bor du mitt i Kindabyggdens vackra kulturlandskap, med närhet till både natur och service och med badrocksavstånd till områdets egna badmöjlighet i rena fina Åsunden.
Detaljer om tomterna 10-11
Storlek ca 1175 kvm.
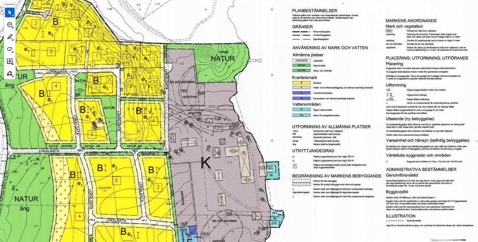
Detaljplan fastställd april 2006
Möjlighet att bygga 1 eller 1,5 planshus, ej källare
Maximal byggnadsarea om 250 kvm inkl komplementsbyggnad.
Detaljer om tomterna 1-9
Storlek ca 1000-1500 kvm.
Detaljplan fastställd juni 2022
Möjlighet att bygga 1, 1,5- eller 2 planshus, ej källare
Maximal byggnadsarea om 150 kvm inkl komplementsbyggnad.
Utöver detta finns möjlighet till Attefallshus och friggebod
Illustrationsplanen visar ett förslag på fastighetsindelning. När den slutliga avstyckningen görs kan Lantmäteriet göra smärre justeringar.
Utöver tomtpriset tillkommer kostnader för anslutning enligt nedan:
- Kommunalt vatten och avlopp, OBS endast 32.500 kr i anslutningsavgift (20% av den ordinarie kommunala avgiften, resterande belopp ingår i tomtpriset)
- Elanslutning via EO.N, anslutningsavgift 54.125 kr
- Fiber, anslutningsavgift 19.800 kr
Alla anslutningar till tomtgräns, anslutningskostnaden avser 2025 års priser.
Rimforsa mark AB bygger och bekostar all infrastruktur med färdigställande under juli månad 2025. Därefter övergår området till Kinda kommun som då blir huvudman för drift och underhåll. Vilket innebär att det inom området inte att behövs någon gemensamhetsanläggning.
Rimforsa - ett levande samhälle med närhet till allt
Tätorten som är en del av Kinda kommun ligger bara 25 minuter från Mjärdevi och 35 min från Linköpings stadskärna med bil. Kollektivt åker du smidigt med tåg och expressbuss.
I Rimforsa finns ett varierat och omfattande utbud av service, t ex:
ICA Supermarket
Restauranger och bageri/konditori
Bygg- , trädgårds och andra specialbutiker
I närheten finns möjligheter att handla lokalproducerade produkter, t ex Kinda Gurka, ostkaka och kött från lokala gårdar.
Bank, distriktssköterska, folktandvård, frisörer, bensinstation m.m.
Nybyggd förskola och pågående modernisering av skolan (F–åk 6)
Kulturellt erbjuds Rimforsa bio, bibliotek och kyrkliga verksamheter.
Aktivt föreningsliv med idrottsområde, multihall och fotbollsplaner.
Vintertid finns belyst spår för längdskidåkning och sommartid kan man spela golf inom kort bilavstånd.
Livskvalitet vid vattnet
Rimforsa erbjuder en fantastisk livsstil med naturen och sjöarna Åsunden, Järnlunden och Ämmern precis runt hörnet. Kinda kanal slingrar sig genom landskapet och bjuder in till bad, båtliv och friluftsliv och på vintern ofta fin långfärdsskridskoåkning.
Har du båt erbjuder Kinda Båtklubb möjlighet till båtplats i mån av tillgång
Bygg din framtid i Rimforsa Strand – Etapp 3. Säkra din tomt redan nu – försäljningen startar nu!
En chans att skapa ditt drömhem i ett av Östergötlands vackraste områden.
Fastighetsmäklare / Delägare
Sebastian Karlsson
Jag eller någon av mina kollegor som är expert på ditt område kontaktar dig gärna för en värdering. Det kostar såklart ingenting och vi kan också starta en värdebevakning.