
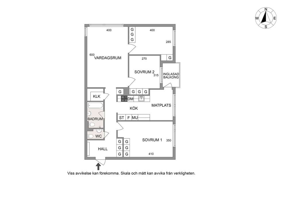
Välkommen till denna fina fyrarummare i attraktivt höjdläge, där du bor högst upp i huset med hiss och en underbar utsikt över Södertörn. Här erbjuds ett hem med ett fantastiskt ljusinsläpp och sol från morgon till kväll, vilket skapar en ljus och inbjudande atmosfär i samtliga rum. Bostaden har en trivsam och genomtänkt planlösning med fönster i två väderstreck som ger ett härligt flöde av ljus. De generösa rummen ger stor flexibilitet i möbleringen, vardagsrummet rymmer enkelt en rymlig soffg...
Välkommen till denna fina fyrarummare i attraktivt höjdläge, där du bor högst upp i huset med hiss och en underbar utsikt över Södertörn. Här erbjuds ett hem med ett fantastiskt ljusinsläpp och sol från morgon till kväll, vilket skapar en ljus och inbjudande atmosfär i samtliga rum. Bostaden har en trivsam och genomtänkt planlösning med fönster i två väderstreck som ger ett härligt flöde av ljus. De generösa rummen ger stor flexibilitet i möbleringen, vardagsrummet rymmer enkelt en rymlig soffgrupp och TV-möbel, perfekt för både avkoppling och umgänge. Det rymliga köket är i mycket gott skick och erbjuder plats för ett matbord för 6–8 personer. Här finns moderna bekvämligheter samt utgång till balkongen, en perfekt plats att njuta av solen och den vackra omgivningen. Lägenheten disponeras med tre sovrum med goda förvaringsmöjligheter samt en praktisk klädkammare i hallen som ytterligare förenklar vardagen. Här finns både badrum och separat gästtoalett, vilket ger extra komfort för familjen eller när gäster är på besök. Föreningen är en äkta förening samt äger marken (FRIKÖPT) med låg skuldsättning per kvm enligt årsredovisningen från 2024. Föreningen Grannporten är känd för sitt starka engagemang och omsorg om de boende. Här finns en stabil och välskött bostadsrättsförening som erbjuder sina medlemmar en trygg och hemtrevlig miljö. Föreningen lägger stor vikt vid att underhålla fastigheterna och erbjuder bland annat praktiska gemensamhetsutrymmen såsom tvättstuga, cykelförråd och förråd, vilket underlättar vardagen. På Storvretsvägen bor ni med ett bekvämt och familjevänligt läge nära både service och natur. Lekplatser, skolor och förskolor finns i närområdet, och bussen stannar endast cirka 100 meter från porten. I centrum har ni tillgång till fler busslinjer samt pendeltåg, vilket gör pendlingen smidig. Ett hem som kombinerar ett attraktivt läge, härlig utsikt och genomgående trivsel, varmt välkommen på visning!
Fastighetsmäklare
Fredrik Pinedo
Jag eller någon av mina kollegor som är expert på ditt område kontaktar dig gärna för en värdering. Det kostar såklart ingenting och vi kan också starta en värdebevakning.