
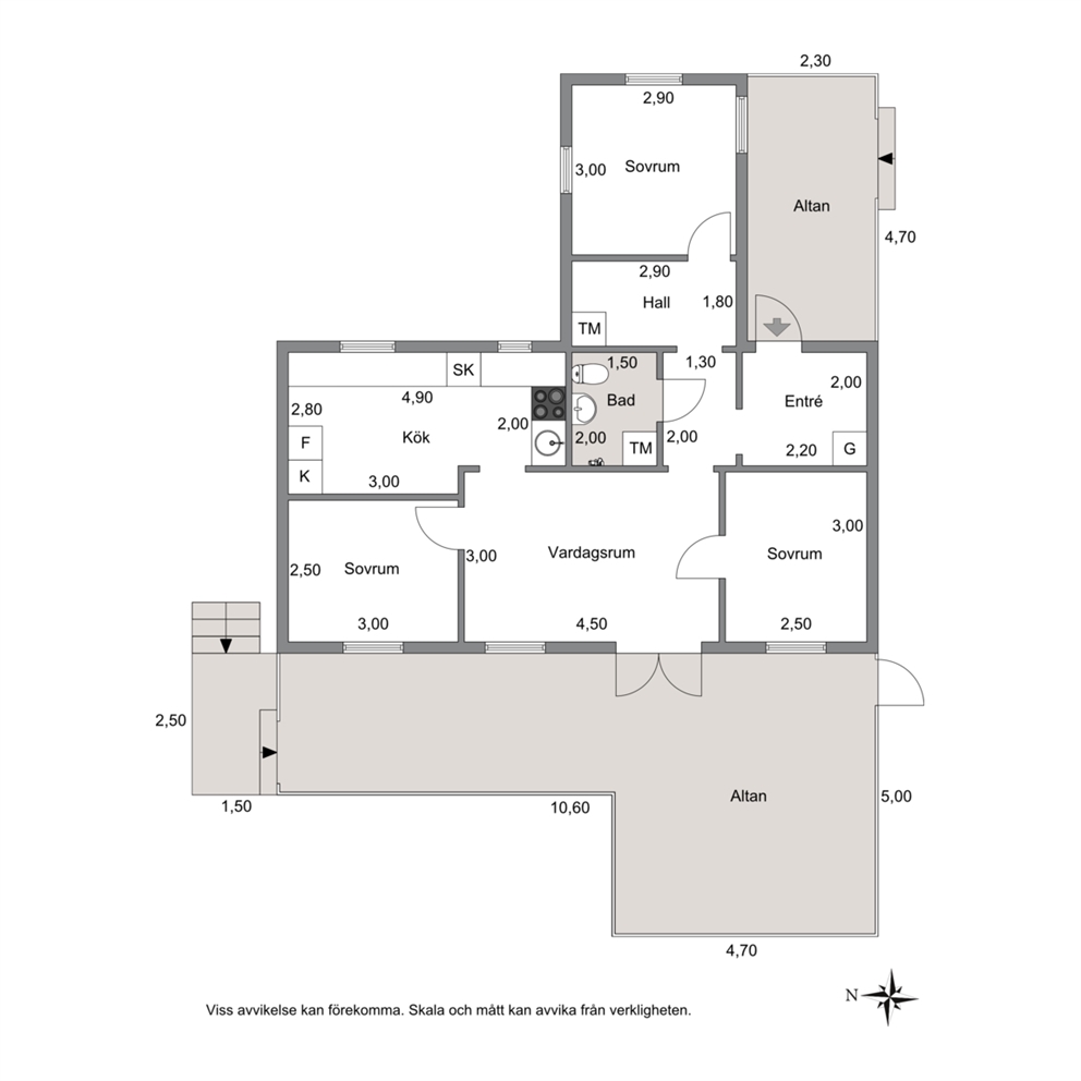
Välkommen till Lövsångarvägen 2, där du hittar ett trivsamt och välplanerat hem i ett lugnt område omgivet av vacker natur. Här bor du med skogen som granne och bara en kort promenad från glittrande vatten. Huset är i mycket gott skick och lämpar sig utmärkt både som permanentboende och som fritidshus, tack vare anslutning till kommunalt vatten och avlopp. Planlösningen erbjuder fyra rum, varav tre är sovrum – perfekt för familjen eller för dig som vill ha extra utrymme för gäster eller hemmako...
Välkommen till Lövsångarvägen 2, där du hittar ett trivsamt och välplanerat hem i ett lugnt område omgivet av vacker natur. Här bor du med skogen som granne och bara en kort promenad från glittrande vatten. Huset är i mycket gott skick och lämpar sig utmärkt både som permanentboende och som fritidshus, tack vare anslutning till kommunalt vatten och avlopp. Planlösningen erbjuder fyra rum, varav tre är sovrum – perfekt för familjen eller för dig som vill ha extra utrymme för gäster eller hemmakontor. På den generösa tomten om 2 426 kvm finns gott om plats för lek, odling eller framtida projekt. Här kan du njuta av soliga dagar på den rymliga altanen och den rofyllda omgivningen. Trots det naturnära läget har du endast 12 minuters bilfärd till Södertälje centrum med dess service, butiker och kommunikationer. Ett hem som kombinerar lugn, natur och närhet till stad – varmt välkommen att boka visning!
Fastighetsmäklare / Partner
Moshe Kucukkaya
Jag eller någon av mina kollegor som är expert på ditt område kontaktar dig gärna för en värdering. Det kostar såklart ingenting och vi kan också starta en värdebevakning.