
Kontakta ansvarig mäklare Jeanette Boghos på 070 752 68 44 för att få mer information gällande pris samt för att boka visning! Välkommen till denna mysiga bostadsrätt i Spånga - Tensta, där gemenskap och trivsel står i fokus. Här finner vi en charmig omgjord 2:a med tre rum som erbjuder både komfort och flexibilitet. Lägenheten ligger på andra och översta våningen, vilket ger en behaglig känsla av privatliv. Låt oss berätta lite om bostaden! Vi kliver in i en hemtrevlig lägenhet där vi möts ...
Kontakta ansvarig mäklare Jeanette Boghos på 070 752 68 44 för att få mer information gällande pris samt för att boka visning! Välkommen till denna mysiga bostadsrätt i Spånga - Tensta, där gemenskap och trivsel står i fokus. Här finner vi en charmig omgjord 2:a med tre rum som erbjuder både komfort och flexibilitet. Lägenheten ligger på andra och översta våningen, vilket ger en behaglig känsla av privatliv. Låt oss berätta lite om bostaden! Vi kliver in i en hemtrevlig lägenhet där vi möts av smarta lösningar och bra planlösning. Här finns tre rum och självklart finns en härlig balkong där du kan njuta av en kopp kaffe eller en god bok när vädret tillåter. Byggnaden uppfördes 1969 och tillhör den välskötta föreningen Brf: Stockholmshus nr 25, som erbjuder en trygg och stabil boendemiljö. Spånga - Tensta är ett område där du har nära till både natur och stadens puls. Med smidiga kommunikationer tar du dig snabbt in till city, samtidigt som du har gångavstånd till gröna parker och omtyckta promenadstråk. Här finns även skolor, förskolor, och ett bra utbud av service och handel. Ett avslappnat område där vi kan känna oss hemma och vara del av ett inkluderande och mångfacetterat lokalsamhälle. Sammanfattningsvis, denna bostad erbjuder en perfekt kombination av lugn och närhet till allt vad Stockholm har att erbjuda. Tillsammans gör vi detta till ditt framtida hem. Varmt välkommen att planera ett besök och upplev hur denna bostad kan möta dina behov och önskemål. Låt oss hjälpa dig på vägen till ditt nya boende!
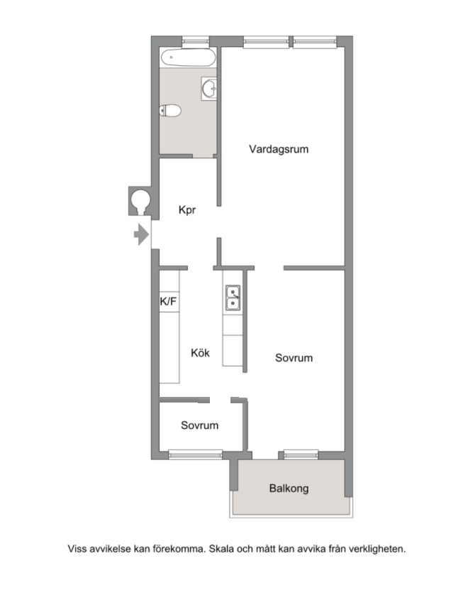
- Inglasad balkong
- Säkerhetsdörr
- Stort förråd finns på samma våningsplan
- Balkong
- Stabil förening
- Omgjord 2:a
Välkomnande hall med avhängningsmöjligheter. Säkerhetsdörr.
Fint kök utrustat med kyl, frys, spis, ugn, fläkt, diskmaskin samt bra med förvaring i skåpen.
Stort vardagsrum med goda möbleringsmöjligheter.
Stort sovrum med plats för dubbelsäng samt garderob.
Detta rummet är det det som är omgjort. Här finns det plats för säng samt garderob. Fönster som ger riktigt med ljusinsläpp.
Helkaklat badrum med badkar, dusch, wc, tvättställ, spegelskåp, kombi tvättmaskin (tvätt + tork) samt fönster.
Från sovrummet nåt man den fina inglasade balkongen med gott om plats för utemöbler.
Lägenheten är Registrerad som en 2:a men disponeras som en 3:a
Fastighetsmäklare / Delägare
Jeanette Boghos
Jag eller någon av mina kollegor som är expert på ditt område kontaktar dig gärna för en värdering. Det kostar såklart ingenting och vi kan också starta en värdebevakning.