Nyproduktion
14 apr
Norra Djurgårdsstaden, StockholmBobergsgatan

Översikt

Bilder

Planritning

Beskrivning

Karta

Finansiering

Typ

Lägenhet

Upplåtelseform

Bostadsrätt

Antal rum

2 rum

Inflyttning

2028

Boarea/Biarea

35 kvm

Våning

4. Hiss finns

Avgift

4 251 kr/månad

Pris

4 200 000 kr
Norra Djurgårdsstaden, Stockholm

Terrasskvarteret Pluss

Pluss = Hotellkänsla hemma

Läs mer om projektet och anmäl intresse här: www.selvaagbostad.se/stockholm/terrasskvarteretpluss/ I hjärtat av Norra Djurgårdsstaden planerar Selvaag Bostad ett nytt Pluss-projekt som kombinerar genomtänkt arkitektur och smart service med ett av Stockholms bästa lägen. Här bor du granne med nationalstadsparken, i ett grönt och levande område nära kommunikationer, kultur och natur med hållbarhet som självklar utgångspunkt. Terrasskvarteren rymmer 166 bostäder i olika storlekar – från 2 till 6 ...

Sarah Sjödin
Ansvarig mäklare
Fastighetsmäklare / Franchisetagare
Norra Djurgårdsstaden
FastighetsbyrånNorra Djurgårdsstaden

Pris
4 200 000 kr
Inga aktuella visningar
För närvarande finns inga planerade visningar. Är du intresserad av att se bostaden eller få mer information? Fyll i dina uppgifter så kontaktar vi dig så snart som möjligt.

Bilder

14 apr
14 apr
14 apr
14 apr
14 apr

Se alla 37 bilder

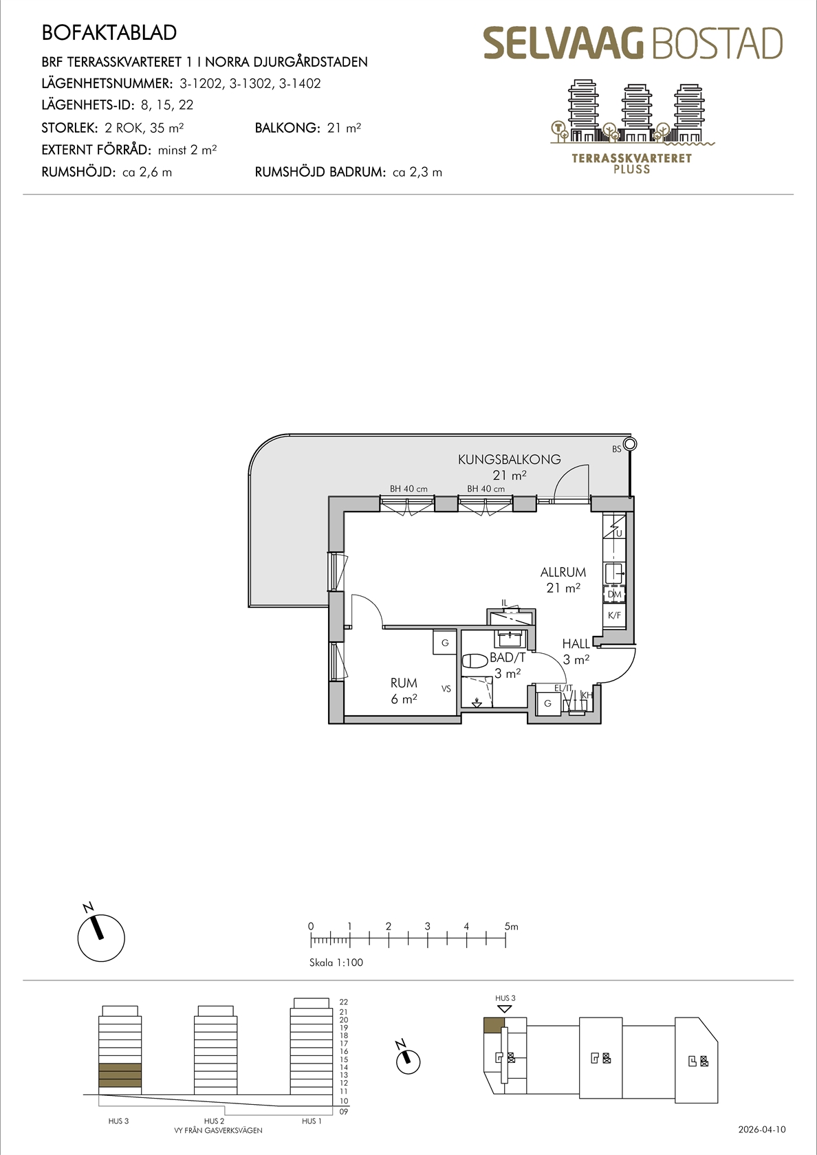
Planritning

Planritning 1
Norra Djurgårdsstaden, Stockholm

Bobergsgatan

Beskrivning

Typ

Lägenhet

Upplåtelseform

Bostadsrätt

Webbnr

1451-17218

Antal rum

2 rum

Boarea/Biarea

35 kvm

Våning

4. Hiss finns

Pris

4 200 000 kr

Avgift

4 251 kr/månadUppvärmning och sophantering

Läs mer om projektet och anmäl intresse här: www.selvaagbostad.se/stockholm/terrasskvarteretpluss/ I hjärtat av Norra Djurgårdsstaden planerar Selvaag Bostad ett nytt Pluss-projekt som kombinerar genomtänkt arkitektur och smart service med ett av Stockholms bästa lägen. Här bor du granne med nationalstadsparken, i ett grönt och levande område nära kommunikationer, kultur och natur med hållbarhet som självklar utgångspunkt. Terrasskvarteren rymmer 166 bostäder i olika storlekar – från 2 till 6 rum och kök – anpassade för både ensamstående, par och familjer. Samtliga boende får tillgång till det unika Plusskonceptet med gemensamma ytor och service i bottenvåningen. Plussloungen, husets naturliga mötesplats, erbjuder bland annat: -Bemannad reception -Fullutrustat gym -Bokningsbara gästrum -Mötesrum -Minibio -Festlokal med stort kök Här kan grannar träffas för middagar, barnaktiviteter, möten och spontant umgänge vilket skapar både trygghet och trivsel i vardagen. Ett beprövat koncept med nöjda boende Plusskonceptet har utvecklats i Norge i över 20 år och omfattar snart 5 000 bostäder – varav nästan 2 000 redan är byggda. I Sverige har Selvaag hittills färdigställt tre Plussprojekt i Stockholm: Svea Fanfar, Svea Serenad och Sädesärlan – alla med sin egen Plusslounge och mycket nöjda boende. Med Terrasskvarteret tar vi nästa steg – och du är varmt välkommen att bli en del av det.

Lägenhet

Övrigt

Personlig bankkontakt

Vill du ha hjälp med finansiering eller lånelöfte?

Wilma Nilsson

Swedbank Lidingö

Fastighetsmäklare / Franchisetagare

Sarah Sjödin

Vill du veta vad din bostad är värd?

Jag eller någon av mina kollegor som är expert på ditt område kontaktar dig gärna för en värdering. Det kostar såklart ingenting och vi kan också starta en värdebevakning.

Hjälp och kontakt
Fastighetsbyrån
Hitta snabbt
Säkerhet och integritet
© Swedbank Fastighetsbyrå AB