
På Stenbocksgatan 5 väntar en bostad som på sina 35 kvadratmeter lyckas kännas både genomtänkt och inbjudande. Redan när du kliver in möts du av ett hem där varje yta har fått spela sin roll, en plats där funktion och trivsel möts i en öppen och harmonisk helhet. Kök, vardagsrum och sovdel flyter samman i en öppen planlösning som skapar rymd och ljus. Här finns utrymme för både vardagens lugna stunder och sociala kvällar, där samtalen får ta plats och livet får röra sig fritt mellan rummen. Lju...
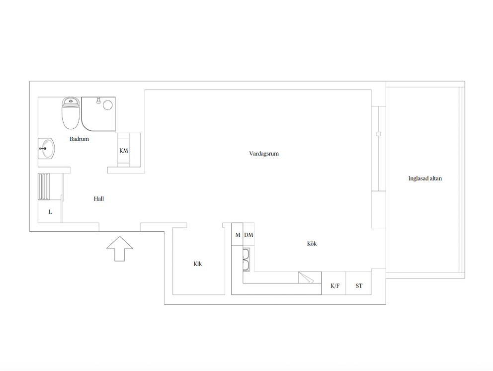
På Stenbocksgatan 5 väntar en bostad som på sina 35 kvadratmeter lyckas kännas både genomtänkt och inbjudande. Redan när du kliver in möts du av ett hem där varje yta har fått spela sin roll, en plats där funktion och trivsel möts i en öppen och harmonisk helhet. Kök, vardagsrum och sovdel flyter samman i en öppen planlösning som skapar rymd och ljus. Här finns utrymme för både vardagens lugna stunder och sociala kvällar, där samtalen får ta plats och livet får röra sig fritt mellan rummen. Ljuset letar sig in och förstärker känslan av ett hem som andas enkelhet och ro. Den privata uteplatsen blir som ett extra rum, en lugn oas mot innergården där du kan njuta av morgonkaffet i stillhet eller avsluta dagen i en mer avskild och rofylld miljö. Förvaringen är väl genomtänkt med en praktisk garderob/walk-in-closet som gör det enkelt att hålla ordning och skapa ett luftigt hem. Badrummet är stilrent och funktionellt utformat, med allt som behövs för en bekväm vardag. Läget är lika bekvämt som det är levande. Med bara ett stenkast till Sannegårdens promenadstråk finns möjligheten till härliga promenader längs vattnet, samtidigt som vardagens behov enkelt tillgodoses med närhet till ICA. Bostaden är belägen på första våningsplan, vilket gör den lättillgänglig och smidig i vardagen, ett hem att trivas i från första stund. Ett boende som passar perfekt för dig som söker något välplanerat, lättskött och med närhet till både stadspuls och natur.
Fastighetsmäklare / Franchisetagare
Labinot Aruqaj
Jag eller någon av mina kollegor som är expert på ditt område kontaktar dig gärna för en värdering. Det kostar såklart ingenting och vi kan också starta en värdebevakning.