
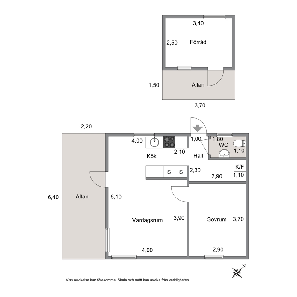
Välkommen till detta mysiga fritidshus. Här erbjuds hela 3 900 kvm tomt i grön och rofylld miljö med gott om plats för odling, lek eller bara lugn och avskildhet. Här bor du granne med den vackra skogen, i ett avskilt och rofyllt läge, nära sjön och fina promenadstigar. Tomten är en egen liten oas, ett stenkast från sjön med servitut på bad och båtbrygga. Invändigt möts vi av en varm och ombonad känsla med genomgående träpanel på väggar och i tak. Vardagsrum och matplats ligger i öppen anslutni...
Välkommen till detta mysiga fritidshus. Här erbjuds hela 3 900 kvm tomt i grön och rofylld miljö med gott om plats för odling, lek eller bara lugn och avskildhet. Här bor du granne med den vackra skogen, i ett avskilt och rofyllt läge, nära sjön och fina promenadstigar. Tomten är en egen liten oas, ett stenkast från sjön med servitut på bad och båtbrygga. Invändigt möts vi av en varm och ombonad känsla med genomgående träpanel på väggar och i tak. Vardagsrum och matplats ligger i öppen anslutning mot köket och skapar en trivsam yta där fönstren släpper in fint ljus och ger utsikt mot sjön som kan nu på våren kan anas mellan träden. Den stora verandan under tak fungerar som en extra uteplats stora delar av året – en självklar plats för morgonkaffet eller stilla kvällar. Köket är praktiskt planerat och är utrustat med spis och diskho. I hallen finns även kyl/frys placerat. Vid entrén finns även en lite toa med mulltoa samt handfat. På tomten finns även en separat mindre byggnad som ger extra utrymme för exempelvis förråd. Här bor du med friheten i att äga din egen mark och möjligheten att forma ditt boende efter dina behov – ett kompakt litet hem med stor tomt och många möjligheter. Välkommen att uppleva det på plats.
Fastighetsmäklare / Franchisetagare
Lisette Austerby
Jag eller någon av mina kollegor som är expert på ditt område kontaktar dig gärna för en värdering. Det kostar såklart ingenting och vi kan också starta en värdebevakning.