
Här blir du första att skapa historia i denna påkostade och mycket genomtänkta villa i populära Lerum! Villan kommer att byggas ihop med dig som köpare så du får möjlighet att vara med genom hela processen. Bygglovet är klart så ditt drömhus kan börja skapas direkt. I det nyckelfärdiga priset ingår ett lösvirkes hus med detaljer som är handplockad och noggrant genomtänkt. Huset är påkostat och generöst i sin layout med sex rum varav fyra är sovrum. Här finns gott om plats för hela familjen att...

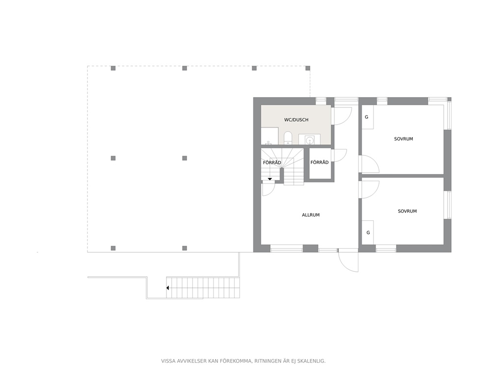
Här blir du första att skapa historia i denna påkostade och mycket genomtänkta villa i populära Lerum! Villan kommer att byggas ihop med dig som köpare så du får möjlighet att vara med genom hela processen. Bygglovet är klart så ditt drömhus kan börja skapas direkt. I det nyckelfärdiga priset ingår ett lösvirkes hus med detaljer som är handplockad och noggrant genomtänkt. Huset är påkostat och generöst i sin layout med sex rum varav fyra är sovrum. Här finns gott om plats för hela familjen att växa och trivas över tid. Boendeytan på 175 kvadratmeter ger möjlighet att inreda precis som du vill. Villans genomtänkta planlösning gör att nedre plan ger fin access mot trädgården. Även en perfekt möjlighet till en separat bostadsdel för tonåringen, gäster osv. Den stora terrassen är ett perfekt utrymme för sommarkvällarna. Här kan du skapa minnen med nära och kära medan ni njuter av den natursköna omgivningen som Lerum har att erbjuda. Terrassen som troligen blir din nya favoritplats ger med sitt höga läge en vacker vy över omgivningarna. Tomten, som sträcker sig över 902 kvadratmeter, ger friheten att anpassa utomhusmiljö efter dina behov. Kanske en trädgård för gröna fingrar, eller en lekplats för barnen att springa fritt. Lerum är känt för sin närhet till natur och sjöar, vilket ger oss boende här fantastiska möjligheter till friluftsliv och rekreation. Här har vi tillgång till både grönområden och vattendrag som inbjuder till allt från skogspromenader till badäventyr. Priset är nyckelfärdigt hus där man som köpare först köper tomten och tillträder den, samtidigt som man skriver ett totalentreprenadskontrakt med byggaren. Det innebär att du som köpare behöver ett byggnadskreditiv med din bank. (Önskar du hjälp med bankkontakt erbjuder vi ett nära samarbete med sparbanken Alingsås där vi kan erbjuda dig bra hjälp). Guidar er gärna vidare. Ni når mig på 0733-414731 för mer information.
Fastighetsmäklare / Kontorschef / Franchisetagare
Jimmy Lang
Jag eller någon av mina kollegor som är expert på ditt område kontaktar dig gärna för en värdering. Det kostar såklart ingenting och vi kan också starta en värdebevakning.