
Nu har vi nöjet att presentera detta välplanerade och fina kedjehus i populära och barnvänliga Mariebergsområdet. Med närhet till förskola, skola och grönområden är det perfekt för barnfamiljen. Skaras serviceutbud finns på nära avstånd. Bostaden har allt samlat i ett plan och erbjuder oss en välkomnade hall, ett stort hemtrevligt kök med träluckor, helkaklad WC, luftigt vardagsrum samt tre mysiga sovrum. Dessutom ett modernt helkaklat badrum, tillgång finns även till en rejäl tvättstuga. På ...
Nu har vi nöjet att presentera detta välplanerade och fina kedjehus i populära och barnvänliga Mariebergsområdet. Med närhet till förskola, skola och grönområden är det perfekt för barnfamiljen. Skaras serviceutbud finns på nära avstånd. Bostaden har allt samlat i ett plan och erbjuder oss en välkomnade hall, ett stort hemtrevligt kök med träluckor, helkaklad WC, luftigt vardagsrum samt tre mysiga sovrum. Dessutom ett modernt helkaklat badrum, tillgång finns även till en rejäl tvättstuga. På baksidan finner vi en uteplats med utgång från vardagsrummet. Till huset hör ett vidbyggt garage med asfalterad uppfart samt tillgång till laddbox för elbil. Fiber finns indraget. Välkommen med din intresseanmälan redan nu!
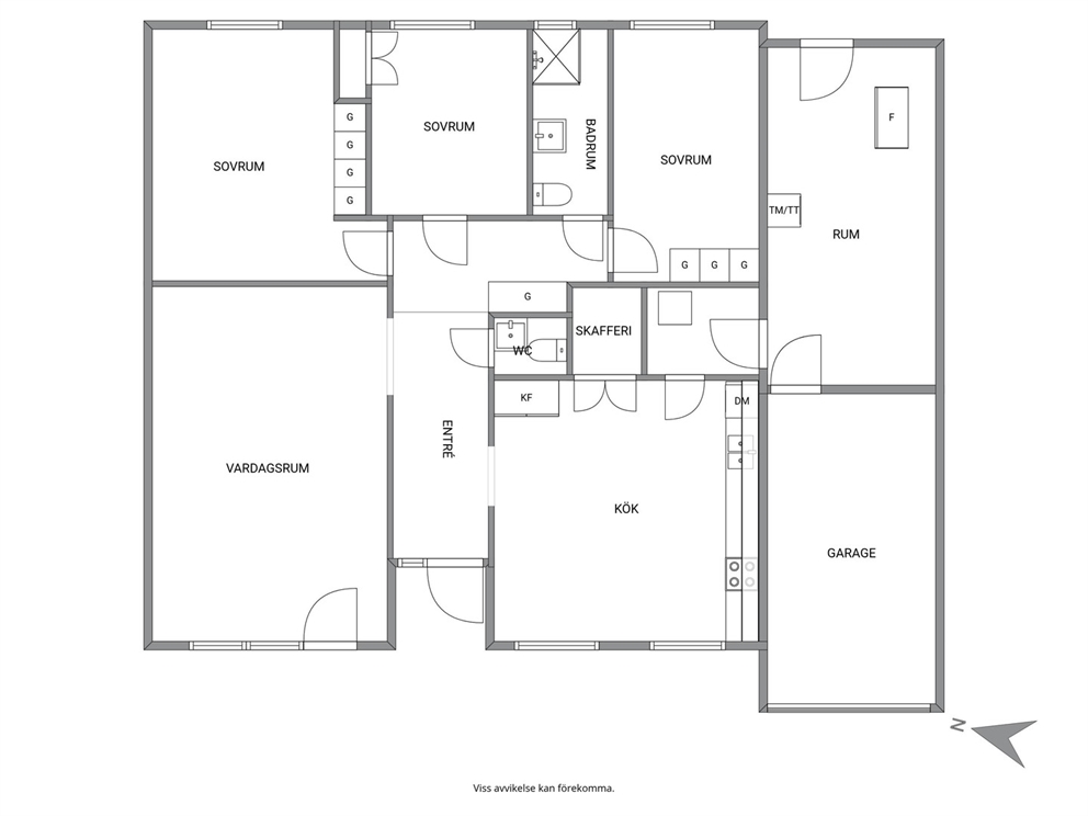
Välkomnande hall med avhängning på vår vänstra sida. Plats även för förvaringsmöbel. Längre fram i hallen till höger finns även en dubbelgarderob. Tapetserade väggar samt parkettgolv.
Tilltaget och hemtrevligt köket. Luckor och vitrinskåp i trä samt ett snyggt kakel skapar en bra känsla. Arbetsytorna är av svart sten vilket bryter av på ett väldigt snyggt sätt. Plats för matgrupp intill fönstret. Mycket god förvaring genom skafferi med överskåp. Vitvaror bestående av hällspis/ugn, frihängande spisfläkt, diskmaskin samt kyl/frys . Väggarna är tapetserade på golvet ligger fint parkettgolv.
Via detta rum når vi vidare ut i tvättstugan samt garaget på ett smidigt sätt.
Mycket snyggt och stilrent badrum i moderna svarta toner. Väggarna är helkaklade och på golvet ligger det klinker. Här finns toalett, handfat med kommod, vägghängd spegel med belysning och duschhörna med infällbara glasdörrar. Här finns även en handdukstork. Stort plus för fönster som ger både ljusinsläpp och vädringsmöjlighet!
Mindre helkaklad toalett med WC, handfat och spegel över.
Trevligt vardagsrum med utgång till uteplats. Plats för soffgrupp och tv-möbel. Tapetserade väggar samt parkettgolv.
Sovrum med god plats för dubbelsäng. Fyra inbyggda garderober ger oss goda förvaringsmöjligheter. Tapetserade väggar samt parkettgolv.
Sovrum med plats för säng och skrivbord. Tre inbyggda garderober. Tapetserade väggar samt parkettgolv.
Mindre sovrum perfekt som barnrum eller kontor placerad vid badrummet. Tapetserade väggar samt parkettgolv.
Tvättstuga med tvättmaskin och torktumlare. Utgång till trädgården. Här finns även en större frys att tillgå. Praktiskt klinkergolv och målade vita betongväggar.
Fastighetsmäklare / Delägare
Felix Arvidsson
Jag eller någon av mina kollegor som är expert på ditt område kontaktar dig gärna för en värdering. Det kostar såklart ingenting och vi kan också starta en värdebevakning.