
Esta espaciosa casa de cuatro plantas en Torremolinos ofrece comodidad, funcionalidad y un toque de lujo. La propiedad cuenta con un amplio sótano con un garaje y trastero, ideal para mantener todo organizado. En la primera planta, encontrará un luminoso salón y una cocina recién reformada con electrodomésticos modernos, además de un práctico aseo de invitados. Desde la cocina, se accede a un patio trasero privado con una acogedora terraza acristalada, perfecta para relajarse durante todo el año...
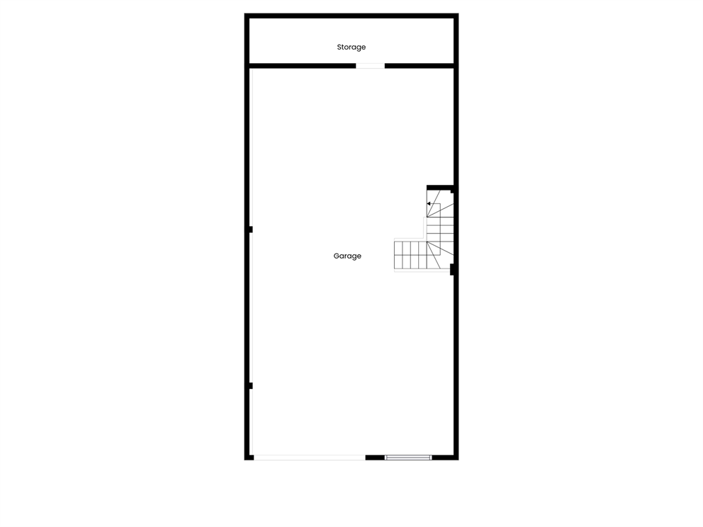
Esta espaciosa casa de cuatro plantas en Torremolinos ofrece comodidad, funcionalidad y un toque de lujo. La propiedad cuenta con un amplio sótano con un garaje y trastero, ideal para mantener todo organizado. En la primera planta, encontrará un luminoso salón y una cocina recién reformada con electrodomésticos modernos, además de un práctico aseo de invitados. Desde la cocina, se accede a un patio trasero privado con una acogedora terraza acristalada, perfecta para relajarse durante todo el año. La segunda planta incluye cuatro dormitorios de buen tamaño y un baño completo, que ofrecen mucho espacio para la familia o los invitados. En la planta superior, hay una lavandería y una espaciosa terraza en la azotea equipada con un pequeño jacuzzi y una zona de barbacoa: un lugar ideal para disfrutar del sol y de vistas parciales al mar. La urbanización ofrece posibilidad de acceso a una piscina, un parque infantil y una pista de pádel para el ocio y el deporte, hoy en día no esta incluida. Ubicada en una zona tranquila con fácil acceso a la autovía, esta casa es perfecta para familias o profesionales que buscan una buena conexión con la ciudad y un estilo de vida relajado cerca de la costa.
Real Estate Agent
Louise Juhlin
Completa tus datos y nos pondremos en contacto contigo.