
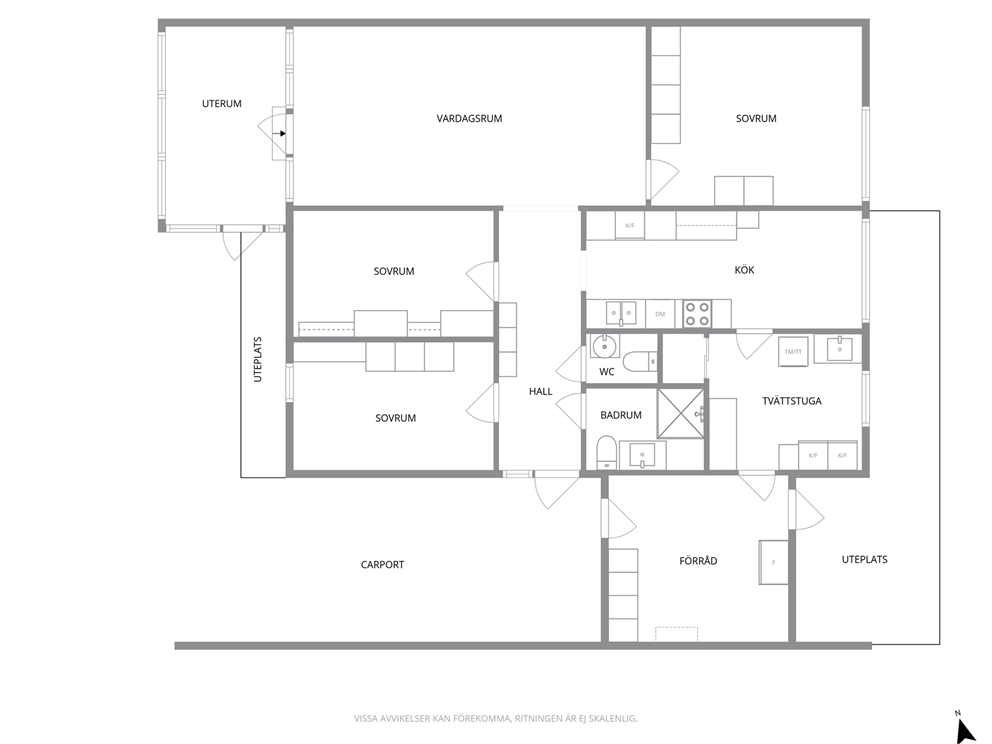
Snart till salu – Almvägen 17 Här snackar vi ett riktigt bra läge i lugna Oskarström och ett hus med grym potential för dig som vill sätta din egen prägel. Enplansvilla där mycket av det invändiga redan är fixat – men där det fortfarande finns utrymme att lyfta till nästa nivå. Ytskikten är uppfräschade i princip överallt (förutom vardagsrum och tvättstuga), så du slipper börja från noll. Badrum och toalett är stilrent renoverade 2021 och har golvvärme – en sån där detalj man snabbt vänjer sig v...
Snart till salu – Almvägen 17 Här snackar vi ett riktigt bra läge i lugna Oskarström och ett hus med grym potential för dig som vill sätta din egen prägel. Enplansvilla där mycket av det invändiga redan är fixat – men där det fortfarande finns utrymme att lyfta till nästa nivå. Ytskikten är uppfräschade i princip överallt (förutom vardagsrum och tvättstuga), så du slipper börja från noll. Badrum och toalett är stilrent renoverade 2021 och har golvvärme – en sån där detalj man snabbt vänjer sig vid. Köket är uppdaterat med ny diskmaskin och ugn, och luft/luft-värmepump från 2014 håller driftskostnaderna nere. Elen är till stor del omdragen med spotlights, jordfelsbrytare är installerad och både innerdörrar och ytterdörr är bytta. Med andra ord: mycket av det tråkiga jobbet är redan gjort. Utemiljön då? Här finns chansen att verkligen skapa något eget. Baksidan kan bli en riktig pärla med lite kärlek, och på framsidan finns ett mindre uterum som går att göra riktigt mysigt. Läget är svårt att slå om du gillar naturen – fina promenadstråk direkt i närheten, och du har både skidbacke och isbana inom kort gångavstånd. Furulundbadet, Österledskolan, förskola, matbutik, restauranger, apotek och gym finns också nära. Här finns helt enkelt allt du behöver i vardagen. Ett perfekt läge för dig som vill ha ett hem att utveckla och trivas i länge.
Fastighetsmäklare
Paulin Haller
Jag eller någon av mina kollegor som är expert på ditt område kontaktar dig gärna för en värdering. Det kostar såklart ingenting och vi kan också starta en värdebevakning.