
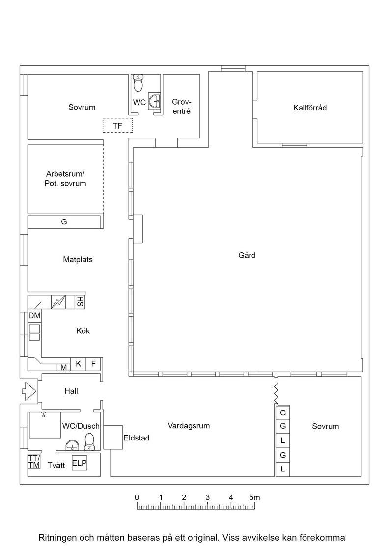
Bakom en diskret, nästan hemlighetsfull tegelfasad döljer sig något oväntat. När du kliver in genom entrén öppnar huset upp sig – inte utåt, utan inåt – mot ett privat atrium där himlen blir en del av hemmet. Det här är ett av de unika atriumhusen ritade av den danske arkitekten Jørn Utzon under 1950-talet. Några år senare ritade han Operahuset i Sydney. Redan här anas det som senare skulle göra honom världsberömd: en djup förståelse för hur människor rör sig, lever och trivs i sina rum. Här är...
Bakom en diskret, nästan hemlighetsfull tegelfasad döljer sig något oväntat. När du kliver in genom entrén öppnar huset upp sig – inte utåt, utan inåt – mot ett privat atrium där himlen blir en del av hemmet. Det här är ett av de unika atriumhusen ritade av den danske arkitekten Jørn Utzon under 1950-talet. Några år senare ritade han Operahuset i Sydney. Redan här anas det som senare skulle göra honom världsberömd: en djup förståelse för hur människor rör sig, lever och trivs i sina rum. Här är varje linje, varje vinkel, varje siktlinje genomtänkt. Planlösningen formar sig som ett U kring innergården – hemmets hjärta. Här flödar ljuset in från flera håll och suddar ut gränsen mellan ute och inne. Vardagsrummet öppnar sig med stora glaspartier mot atriet, där morgonkaffet smakar bättre, sommarkvällarna dröjer sig kvar och årstiderna blir en naturlig del av vardagen. Materialen är ärliga och tidlösa. Tegel, trä och glas samspelar i en lågmäld palett som låter arkitekturen tala. Mot gatan är huset slutet och skyddande – en trygg borg mot omvärlden. Men innanför murarna väntar en oväntad rymd, en intimitet som känns både modern och uråldrig på samma gång, inspirerad av medelhavets och Mellanösterns gårdshus. Planetstaden är ett område där arkitekturen får andas. Låg bebyggelse, gröna stråk och en mänsklig skala skapar en lugn och harmonisk helhet. Det är lätt att förstå varför dessa hus sällan byter ägare – och varför de som flyttar in gärna stannar länge.
Fredrik Larsson
Sparbanken SkåneFastighetsmäklare / Delägare / Teamledare
Rasmus Asterhed
Jag eller någon av mina kollegor som är expert på ditt område kontaktar dig gärna för en värdering. Det kostar såklart ingenting och vi kan också starta en värdebevakning.