
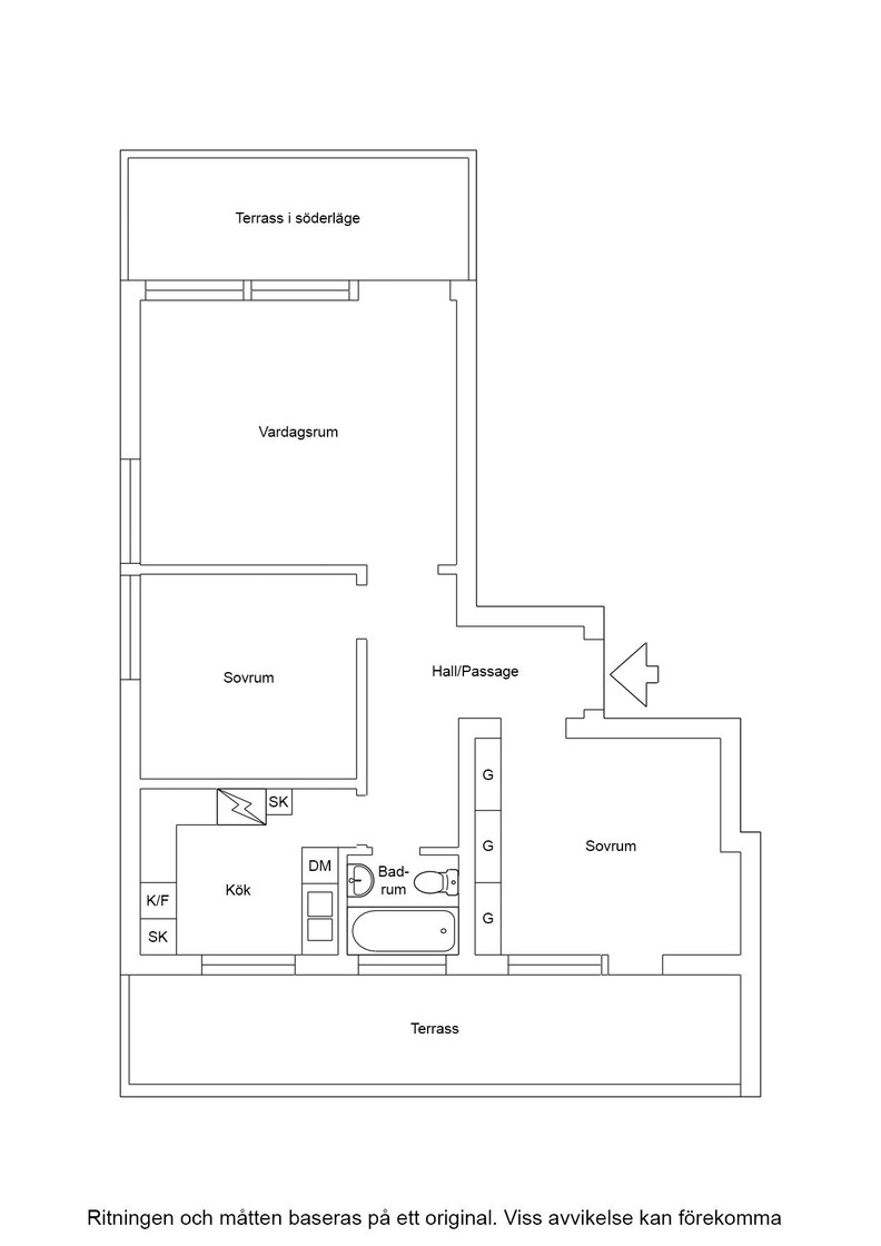
På Tågmästarevägen 3, i fastigheten Bälgen 2, ligger denna välplanerade trea om 69 kvm – ritad av arkitekten Hans Westman, en av funktionalismens mer tongivande profiler i Sverige. Här märks hans känsla för proportioner, ljusinsläpp och genomtänkta planlösningar, där varje kvadratmeter fyller en funktion utan att ge avkall på rymd. Här bor du med ljuset som ständig följeslagare. Fönster i tre väderstreck skapar en sällsynt rymd och ett flöde genom bostaden, där varje rum får sin egen karaktär. ...
På Tågmästarevägen 3, i fastigheten Bälgen 2, ligger denna välplanerade trea om 69 kvm – ritad av arkitekten Hans Westman, en av funktionalismens mer tongivande profiler i Sverige. Här märks hans känsla för proportioner, ljusinsläpp och genomtänkta planlösningar, där varje kvadratmeter fyller en funktion utan att ge avkall på rymd. Här bor du med ljuset som ständig följeslagare. Fönster i tre väderstreck skapar en sällsynt rymd och ett flöde genom bostaden, där varje rum får sin egen karaktär. Planlösningen är tydligt uppdelad mellan sociala och privata ytor, samtidigt som rörelsen genom bostaden känns naturlig och öppen. Originaldetaljer från 30- och 40-talet finns bevarade, inte minst de två blyinfattade fönstren som tillför karaktär och påminner om husets tidstypiska uttryck. Bostadens hjärta är det generösa vardagsrummet – ett luftigt sällskapsrum med direkt utgång till en av de två takterrasserna i soligt söderläge. Här öppnar sig en vy över takåsar och grönska, där himlen känns nära och dagarna gärna får dröja kvar långt in på kvällen. Den andra terrassen förlänger bostaden ytterligare och ger möjlighet att följa ljuset under större delen av dagen. Kombinationen av två generösa terrasser och läget högst upp i huset är ovanlig och bidrar till en påtaglig känsla av rymd. Läget på Väster är något utöver det vanliga – ett lugnt kvarter präglat av villabebyggelse och grönområden, där den låga bebyggelsen ger en ovanligt fri känsla. Här bor du med närhet till stadens puls, men med en stillsam, nästan småskalig atmosfär precis utanför dörren.
Fredrik Larsson
Sparbanken SkåneFastighetsmäklare / Delägare / Teamledare
Rasmus Asterhed
Jag eller någon av mina kollegor som är expert på ditt område kontaktar dig gärna för en värdering. Det kostar såklart ingenting och vi kan också starta en värdebevakning.