
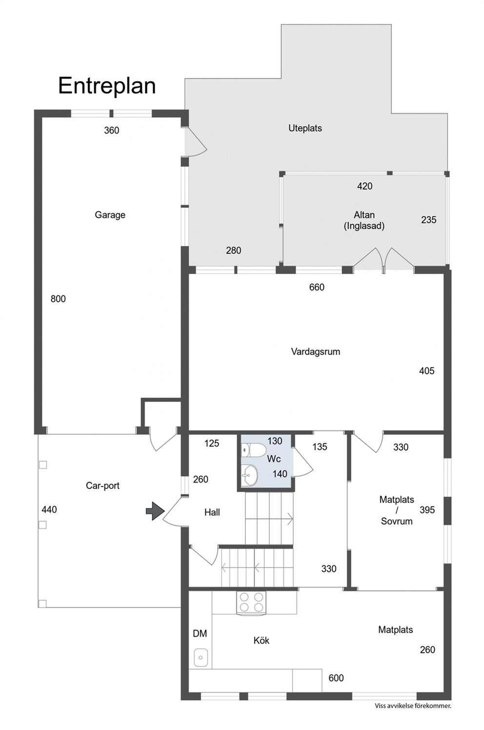
Välkommen till ett välskött hem som erbjuder gott om plats för hela familjen! Här möts du av en genomtänkt planlösning med rymliga sällskapsytor, flera sovrum och en inbjudande atmosfär som gör det enkelt att trivas från första stund. Det ljusa vardagsrummet har direkt access till en fantastisk uteplats – en riktig pärla där man kan njuta av soliga dagar, middagar under bar himmel och avkoppling i det fria. Skulle vädret slå om finns också ett mysigt uterum där du kan njuta av utomhuskänslan, äv...
Välkommen till ett välskött hem som erbjuder gott om plats för hela familjen! Här möts du av en genomtänkt planlösning med rymliga sällskapsytor, flera sovrum och en inbjudande atmosfär som gör det enkelt att trivas från första stund. Det ljusa vardagsrummet har direkt access till en fantastisk uteplats – en riktig pärla där man kan njuta av soliga dagar, middagar under bar himmel och avkoppling i det fria. Skulle vädret slå om finns också ett mysigt uterum där du kan njuta av utomhuskänslan, även när det regnar. Huset har genomgått flera förbättringar genom åren, såsom dränering, installation av solceller och laddbox samt en ny luft/vattenvärmepump från 2025. Huset ligger i ett lugnt och barnvänligt område med närhet till både grönområden, skolor, förskolor, service och goda kommunikationer. Här bor du med naturen precis runt knuten. Detta är ett hem som kombinerar funktion, trivsel och livskvalitet – perfekt för dig som söker ett boende att växa i och trivas med länge.
Fastighetsmäklare / Delägare
Romeo Sharro
Jag eller någon av mina kollegor som är expert på ditt område kontaktar dig gärna för en värdering. Det kostar såklart ingenting och vi kan också starta en värdebevakning.