
Välkommen till en vacker och smakfullt renoverad sekelskiftesbostad med genomgående planlösning och fint ljusinsläpp från två väderstreck. Här möts du av högt i tak, eleganta stuckaturer, vackra trägolv och två kakelugnar som ger hemmet karaktär. De tidstypiska detaljerna samspelar med moderna och noggrant utvalda material i en bostad som är totalrenoverad med omsorg om varje detalj. Planlösningen mellan kök och vardagsrum är öppen och skapar en social yta som passar både vardag och middagar me...
Välkommen till en vacker och smakfullt renoverad sekelskiftesbostad med genomgående planlösning och fint ljusinsläpp från två väderstreck. Här möts du av högt i tak, eleganta stuckaturer, vackra trägolv och två kakelugnar som ger hemmet karaktär. De tidstypiska detaljerna samspelar med moderna och noggrant utvalda material i en bostad som är totalrenoverad med omsorg om varje detalj. Planlösningen mellan kök och vardagsrum är öppen och skapar en social yta som passar både vardag och middagar med vänner. Stora fönster släpper in generöst med dagsljus. Bostaden erbjuder tre välplanerade rum med bra förvaring och genomtänkta lösningar. Du bor i en stabil och skuldfri förening med god ekonomi, stora lokalintäkter och en kvarvarande hyresrätt som stärker föreningens långsiktiga värde. Läget är attraktivt på Östermalm med närhet till restauranger, caféer, shopping och kultur. Goda kommunikationer finns i området och gör det enkelt att ta sig runt i staden. Ett hem som kombinerar sekelskiftets charm med modern standard.
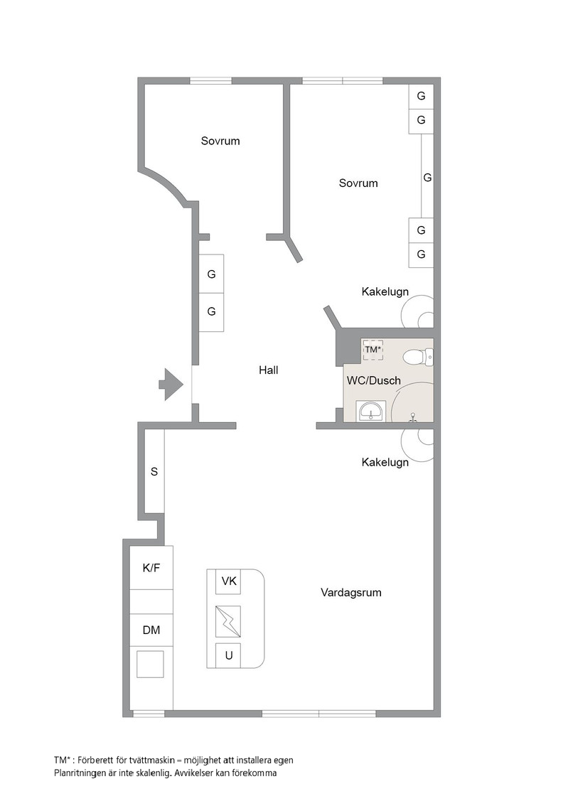
Välkomnande och smart planerad hall med platsbyggd skohylla som även fungerar som sittbänk. Här finns hatthylla med god avhängningsplats samt en platsbyggd garderob som erbjuder utmärkt förvaring. Direkt innanför entrén ligger ett stilrent stengolv som längre in övergår i det vackra trägolvet som är genomgående i lägenheten. Hallen har genomtänkta och behagliga färgval.
Smakfullt badrum med stengolv. Utrustat med vägghängd toalett, dusch, handfat med kommod, spegel samt ett förvaringsskåp i mörkare trä. Förberett för tvättmaskin.
Öppet och välplanerat kök med platsbyggd köksö som erbjuder god förvaring, plats för barstolar samt integrerad vinkyl. I köksön finns både spis och ugn. Köket är även utrustat med kyl, frys och diskmaskin. Här finns även plats för matbord och stolar. Ljusa väggar och trägolv samspelar med den moderna köksutrustningen. Fönster ger fint ljusinsläpp. Den öppna planlösningen mot vardagsrummet skapar en praktisk och social yta.
Rymligt vardagsrum med generöst ljusinsläpp och vacker kakelugn som ger rummet karaktär. Väggarna är målade i en behaglig beige ton och tillsammans med trägolvet skapas en trivsam helhet. Fönster mot gatan.
Sovrum som nås från hallen. Rummet har gott om dagsljus och en klassisk kakelugn som inte är i bruk. Här finns plats för dubbelsäng och kompletterande möbler. Ljusa väggar och trägolv. Platsbyggd garderobslösning som ramar in sängdelen. Fönster mot innergård.
Rum med fönster som kan användas som sovrum, arbetsrum eller walk in closet beroende på behov.
Fastighetsmäklare
Cornelia Strömberg
Jag eller någon av mina kollegor som är expert på ditt område kontaktar dig gärna för en värdering. Det kostar såklart ingenting och vi kan också starta en värdebevakning.