
Välkommen till Älghagsstigen 4 – ett varmt och omtyckt hem som varit i samma familjs ägo sedan 1975. Här erbjuds ett lugnt och insynsskyddat boende längst in på återvändsplan, där både huset och platsen tagits väl om hand genom åren. Kombinationen av generösa ytor, imponerande takhöjd och närhet till naturen gör detta till ett hem som är lätt att tycka om. Invändigt möts du av en öppen planlösning med stora och inbjudande umgängesytor som skapar en naturlig samlingspunkt för familj och vänner. ...
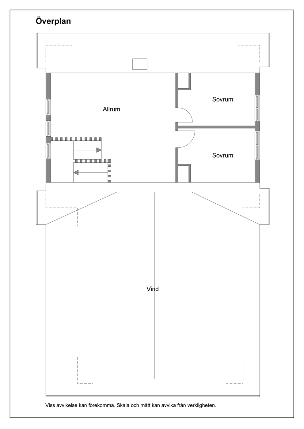
Välkommen till Älghagsstigen 4 – ett varmt och omtyckt hem som varit i samma familjs ägo sedan 1975. Här erbjuds ett lugnt och insynsskyddat boende längst in på återvändsplan, där både huset och platsen tagits väl om hand genom åren. Kombinationen av generösa ytor, imponerande takhöjd och närhet till naturen gör detta till ett hem som är lätt att tycka om. Invändigt möts du av en öppen planlösning med stora och inbjudande umgängesytor som skapar en naturlig samlingspunkt för familj och vänner. På ovanvåningen finns ett stort allrum med öppet upp till nock, där takhöjden sträcker sig flera meter och ger en fantastisk rymd och ett vackert ljusinsläpp. Bostaden rymmer totalt fyra sovrum, varav två ovanligt stora och två något mindre, perfekt anpassade som barnrum, arbetsrum, gästrum eller hobbyrum. Köket har ett stort fönster mot den öppna ängen på baksidan, vilket ger både rogivande utsikt och ett härligt naturligt ljus. Därtill finns en praktisk groventré med goda förvaringsmöjligheter och diskbänk, samt en braskamin som bidrar med både värme och trivsel. Huset är försett med 3‑glas isolerfönster och två luft‑luftvärmepumpar installerade 2023–2024, vilket ger god komfort året om. Utomhus väntar en lättskött trädgård med ett över hundra år gammalt äppelträd som genom åren gett rikliga skördar. Den stora altanen bjuder på sol från cirka klockan tio på förmiddagen och blir en naturlig plats för avkoppling och umgänge. Mot baksidan breder en stor äng ut sig med öppna vyer och gott om plats för lek och rörelse, kompletterad med fotbollsmål för den som vill. Läget är lugnt och privat, utan genomfartstrafik, vilket ger en trygg och stillsam vardag. Till huset hör ett varmgarage om cirka 28 kvadratmeter, utrustat med elbilsladdare, elstolpe, arbetsbänk samt extra kyl och frys. Här finns även goda förvaringsmöjligheter i form av förråd för cyklar, gräsklippare och trädgårdsredskap, liksom en stor sidovind i ståhöjd. Taket renoverades så sent som 2025 med ny takpapp, läkt och pannor, arbetet utfört av entreprenör, och fasaden är nyligen nymålad. Området är mycket omtyckt med fina promenad- och cykelvägar, närhet till skog och Mälaren för rekreation och bad samt flera skolor och förskolor i närområdet. Åkermyntans centrum nås till fots och kommunikationen är smidig med bussförbindelser till både Vällingby och Barkarby.
Fastighetsmäklare / Franchisetagare
Jimmy Solkarin
Jag eller någon av mina kollegor som är expert på ditt område kontaktar dig gärna för en värdering. Det kostar såklart ingenting och vi kan också starta en värdebevakning.