
Välrenoverat och smakfullt parhus i ett lugnt område i familjevänliga Visinge! Här, på Veterinärvägen, får även den stora familjen plats tack vare fyra sovrum och generöst med sociala ytor med sällskapsrum på båda planen. Exteriört bjuder huset på stora altaner om båda sidor huset, ett trevligt uterum samt en balkong på det övre planet. Köket är nyrenoverat 2026 med en sober färgsättning och kvalitetsinredning från Epoq. Även badrum och klädvårdsrum är renoverade 2026 med nya installationer. Var...

Välrenoverat och smakfullt parhus i ett lugnt område i familjevänliga Visinge! Här, på Veterinärvägen, får även den stora familjen plats tack vare fyra sovrum och generöst med sociala ytor med sällskapsrum på båda planen. Exteriört bjuder huset på stora altaner om båda sidor huset, ett trevligt uterum samt en balkong på det övre planet. Köket är nyrenoverat 2026 med en sober färgsättning och kvalitetsinredning från Epoq. Även badrum och klädvårdsrum är renoverade 2026 med nya installationer. Varmt välkommen till ett hem där det bara är att flytta in! Vi erbjuder virtuell visning för denna bostad. Klicka på 'läs mer hos mäklaren' för mer information. Här i Visinge bor du i ett naturnära och barnvänligt område karaktäriserad av småskalig bebyggelse och lummiga tomter. Nära till kommunikationer med bussar både mot stan och Täby C och Roslagsbanan på promenadavstånd. På promenadavstånd finns också en ICA-affär, vårdcentral, frisör, pizzeria samt sushirestaurang. Vid frågor samt fortsatt intresse är du välkommen att kontakta ansvarig mäklare Christoffer Stendahl på 073-040 05 58! Vissa av bilderna har digitalt styleats och visar inte den faktiska möbleringen i bostaden.
Välkommen in i huset! Här möts du först av en rymlig hall med gott om plats för förvaringsmöbler innan du tar dig vidare till allrum och kök. Från hallen har du även direkt tillgång till husets första sovrum samt till badrummet. Ljusa väggar och parkettgolv.
Ljust kök renoverat 2026 med köksinredning i en härligt varm beige ton. Här har du gott om plats för en trevlig matplats i anslutning till rummets fönster. Hög utrustningsnivå med fullstor kyl / frys, ugn & micro i arbetshöjd, spishäll, köksfläkt samt en integrerad diskmaskin.
Rymligt allrum med flexibla ytor att nyttja antingen som en trevlig matsal eller som ett andra vardagsrum. Neutrala ytskikt och fina parkettgolv.
Rymligt sovrum direkt på entréplanet, perfekt som barnrum eller som hemmakontor. Trevligt ljusinsläpp från ett stort fönster och neutrala ytskikt med vita väggar och parkettgolv.
Fräscht helkaklat badrum i neutrala färger med vita kaklade väggar och ett grått klinkergolv med golvvärme. Goda förvaringsutrymmen i den stora handfatskommoden. Vidare utrustat med dusch bakom glasdörrar, handdukstork samt WC-stol.
Fräscht och nyrenoverat klädvårdsrum med nyinstallerade och påkostade vitvaror, tvättmaskin och torkskåp.
Trevligt vidbyggt uterum intill husets entré som stora delar av året förlänger boytorna med ytterligare ett härligt sällskapsrum. Stora fönsterpartier och skjutdörrar.
Rymligt vardagsrum med gott om plats för inredning med en stor soffgrupp. Trevligt ljusinsläpp från stora fönster samt utgång till den trälagda uteplatsen. Vita målade väggar och parkettgolv.
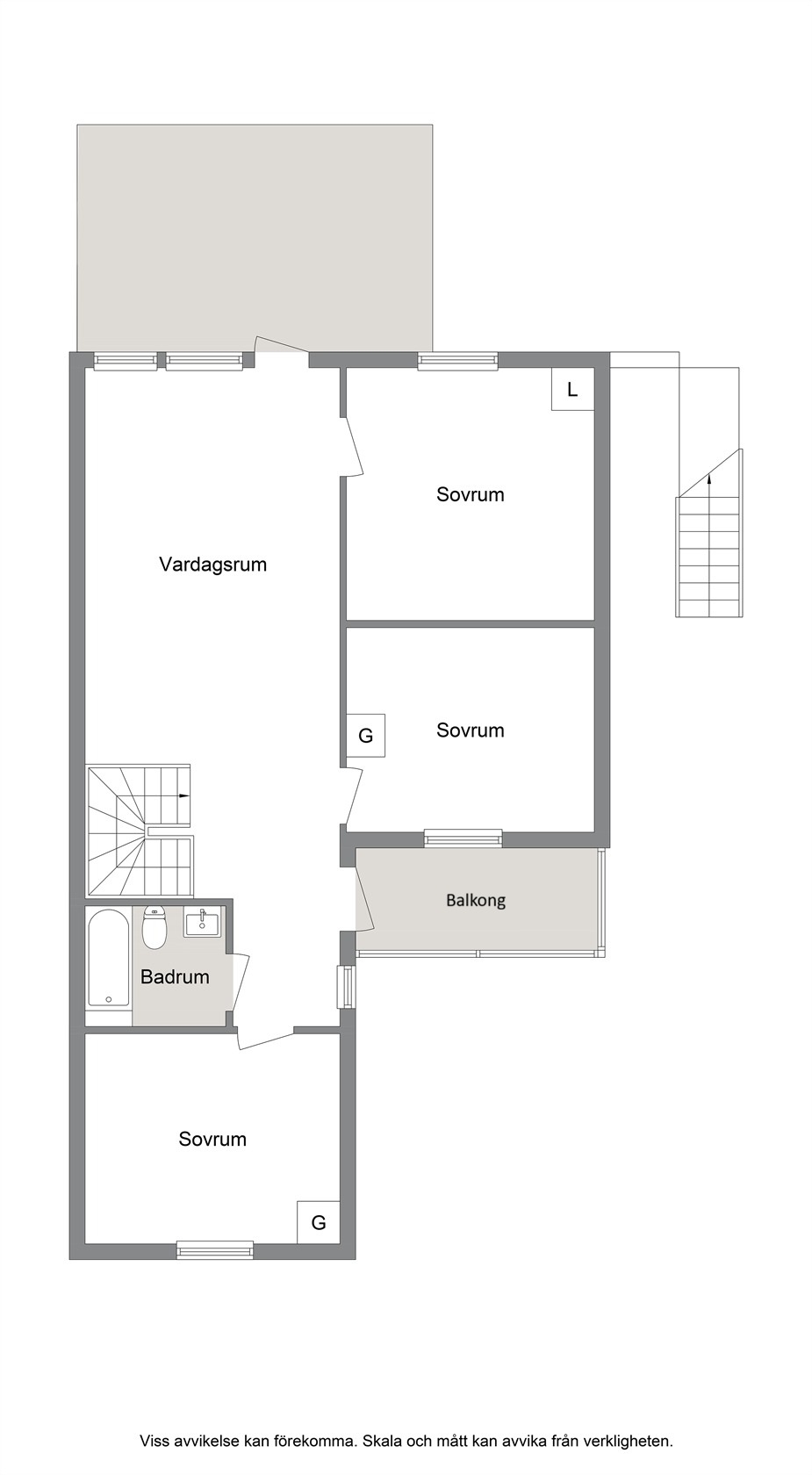
Övre plan rymmer sammanlagt tre sovrum, samtliga med neutrala ljusa ytskikt, trevligt ljusinsläpp och gott om plats för flexibel möblering. Husets största sovrum rymmer en dubbelsäng och de två mindre rymmer större enkelsängar.
Övre plans badrum går i matchande toner med entréplanet där väggarna är kaklade i vitt och klinkergolvet grått, även här med golvvärme. Utrustat med ett trevligt badkar och inbyggd förvaring i både handfatskommoden samt i spegelskåpet. Vidare utrustat med handdukstork och WC-stol.
Fastighetsmäklare / Delägare
Christoffer Stendahl
Jag eller någon av mina kollegor som är expert på ditt område kontaktar dig gärna för en värdering. Det kostar såklart ingenting och vi kan också starta en värdebevakning.