
Välkommen till en trivsam fastighet med garage, belägen på en rymlig tomt omgiven av åkrar och skog. Här bor du med naturen som granne, samtidigt som du har Främmestad endast ett stenkast bort med 24/SJU-butik, pizzeria och förskola. I Främmestad finns också ett rikt föreningsliv med fotboll, byggdegård och dans hos Malmabuggarna. Bostaden rymmer sovrum, badrum, vardagsrum, kök samt groventré med tvättdel. Uppvärmning sker smidigt och i huvudsak med luftvärmepump. Stor tomt med lite berg i dagen...

Välkommen till en trivsam fastighet med garage, belägen på en rymlig tomt omgiven av åkrar och skog. Här bor du med naturen som granne, samtidigt som du har Främmestad endast ett stenkast bort med 24/SJU-butik, pizzeria och förskola. I Främmestad finns också ett rikt föreningsliv med fotboll, byggdegård och dans hos Malmabuggarna. Bostaden rymmer sovrum, badrum, vardagsrum, kök samt groventré med tvättdel. Uppvärmning sker smidigt och i huvudsak med luftvärmepump. Stor tomt med lite berg i dagen, gräsmark och träd. Varmt välkommen med din intresseanmälan!
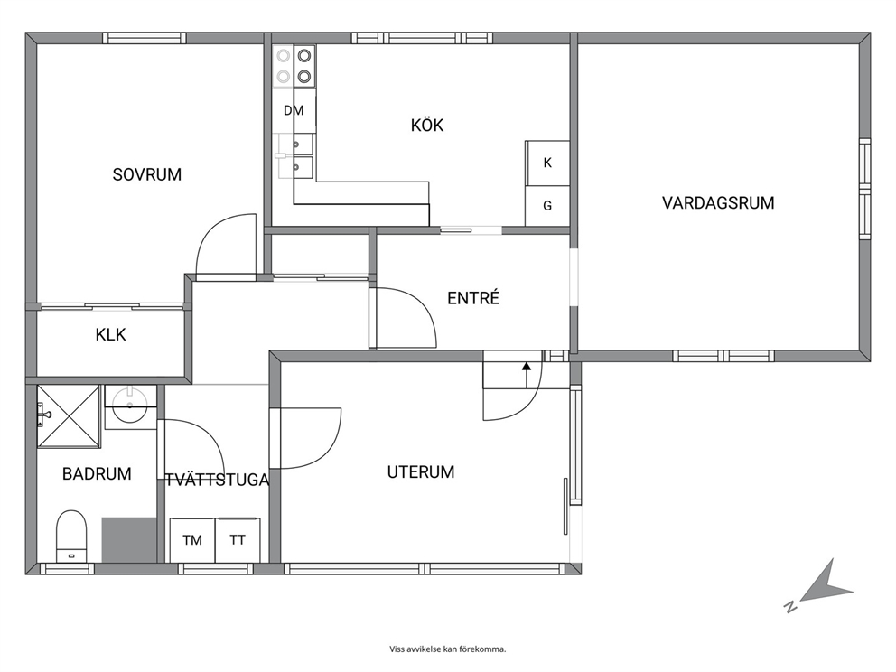
Entréhall med ljust laminatgolv och stående panel på väggarna. Pärlspont i taket och plats för enklare avhängning och möblering. Innan entréhallen samt groventrén finns ett uterum.
Groventré med tvättdel utrustad med tvättmaskin. Plastmatta på golv och målade väggar. Praktiskt utrymme med plats för avhängning och förvaring.
Badrum med duschhörna med glasväggar och kommod med handfat samt spegelskåp. Väggarna är våtrumsmålade i en turkos ton och golvet har plastmatta i klassiskt schackrutigt mönster. Utrustat med WC och ett fönster som ger fint ljusinsläpp. Varmvattenberedaren är placerad här.
Rymligt rum med plats för dubbelsäng eller säng tillsammans med skrivbord och förvaring. Skjutdörrsgarderob ger goda förvaringsmöjligheter. Ljusa väggar och plastmatta på golv.
Trevligt kök med äldre köksinredning i vitt. Laminatbänkskivor med kakel ovanför. Utrustat med spis, fläkt, diskmaskin (45 cm) samt kombinerad kyl/frys. Plats för en mindre matgrupp. Ljusa väggar och ljust laminatgolv.
Ljust rum med fönster i två väderstreck. Plats för en mindre soffgrupp och TV‑möbel. Ljusgrå väggar, vitmålat pärlsponttak och furugolv.
Fastighetsmäklare/ Skogsmästare
Anders Arosenius
Jag eller någon av mina kollegor som är expert på ditt område kontaktar dig gärna för en värdering. Det kostar såklart ingenting och vi kan också starta en värdebevakning.