På gång
Rymlig balkong (obs rendering)
Tynnered, GöteborgOnyxgatan 4

Översikt

Bilder

Planritning

Beskrivning

Karta

Finansiering

Byggår

2023

Typ

Lägenhet

Upplåtelseform

Bostadsrätt

Antal rum

2 rum + Kök

Boarea/Biarea

40 kvm

Våning

6 av 8. Hiss finns

Avgift

3 290 + 199 kr/månad

Pris

1 900 000 kr Utgångspris
Söderläge med parkutsikt!

PRISSÄNKT 100.000KR, ACCEPTERAT PRIS! Kvadratsmart tvårummare med plats för dubbelsäng i sovrummet samt möjlighet till utökad förvaring. Öppen planlösning med härligt ljusinsläpp till kök/vardagsrum och med utgång till balkongen i söder med utsikt mot park. Stilrent kök med induktionshäll, inbyggnadsugn, mikro, diskmaskin och kombinerad kyl/frys. Helkaklat badrum med dusch och kombimaskin. Praktiskt förråd i lägenheten. Tillträde möjligt i Januari 2024.


Pris
1 900 000 krBevaka slutpris
Utgångspris
På gång
Under "På gång" visar vi bostäder där en försäljning förbereds. Anmäl ditt intresse redan nu så håller vi dig uppdaterad.

Bilder

Rymlig balkong (obs rendering)
Bild 1
Bild 2
Utsikt från balkongen över parken!
Bild 3

Se alla 18 bilder

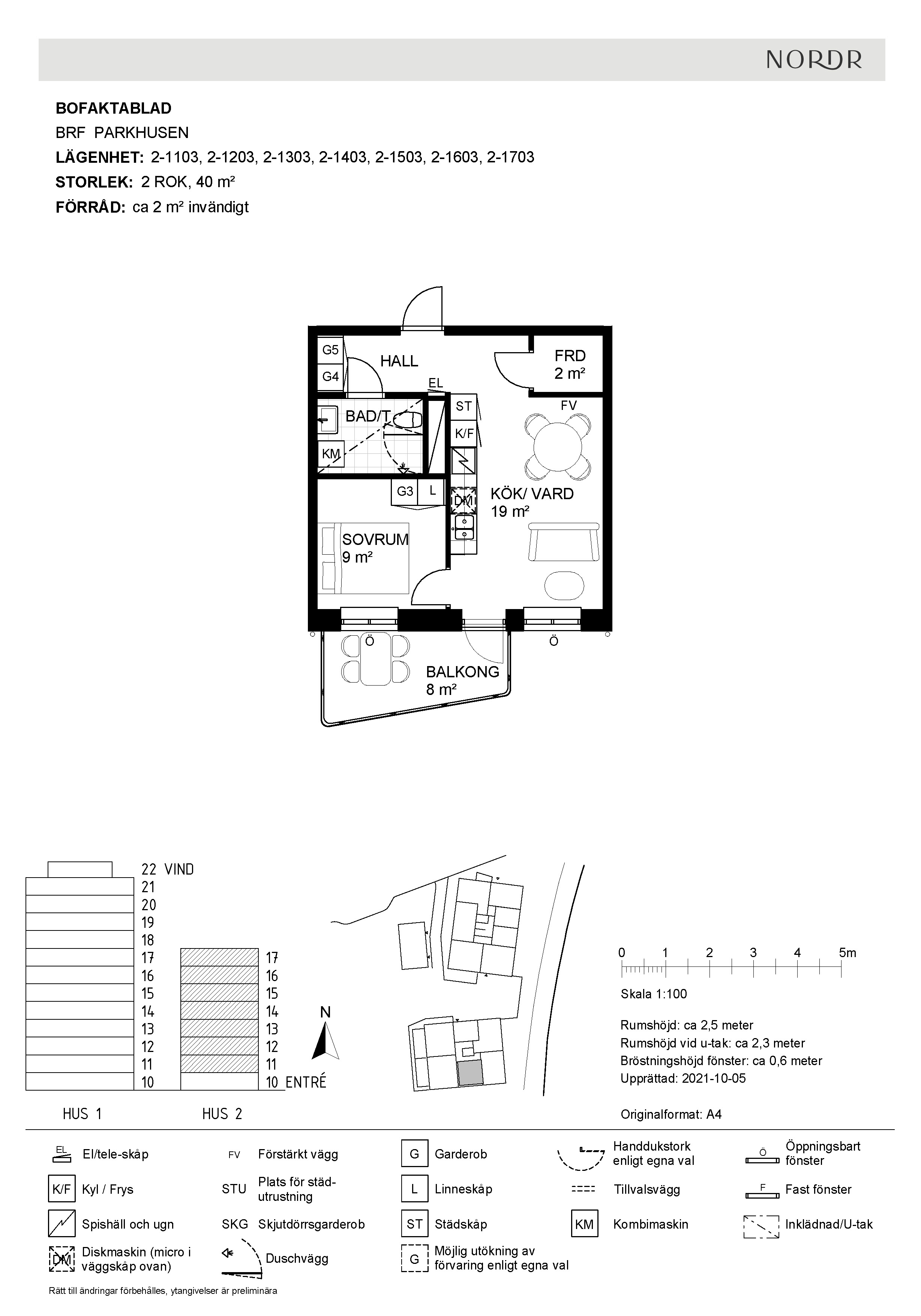
Planritning

Planritning 1
Tynnered, Göteborg

Onyxgatan 4

Beskrivning

Byggår

2023

Typ

Lägenhet

Upplåtelseform

Bostadsrätt

Webbnr

5403-39228

Antal rum

2 rum + Kök

Boarea/Biarea

40 kvm

Våning

6 av 8. Hiss finns

Pris

1 900 000 kr Utgångspris

Avgift

3 290 + 199 kr/månadAvgift bostad. Angiven pluspost efter månadsavgift avser obligatoriska tillägg för Telia triple play. Beloppet redovisas även som driftskostnad under Ekonomi.

PRISSÄNKT 100.000KR, ACCEPTERAT PRIS! Kvadratsmart tvårummare med plats för dubbelsäng i sovrummet samt möjlighet till utökad förvaring. Öppen planlösning med härligt ljusinsläpp till kök/vardagsrum och med utgång till balkongen i söder med utsikt mot park. Stilrent kök med induktionshäll, inbyggnadsugn, mikro, diskmaskin och kombinerad kyl/frys. Helkaklat badrum med dusch och kombimaskin. Praktiskt förråd i lägenheten. Tillträde möjligt i Januari 2024.

Hall
Välkomnade hall med bra förvaring direkt till höger. Väggarna är målade vita och på golvet ligger ekparkett som löper vidare in i lägenheten.


Kök/Vardagsrum

Stilrent kök med vita luckor från Vedum. Maskinparken består av induktionshäll, inbyggnadsugn, mikro, diskmaskin och kombinerad kyl/frys. Öppen planlösning mot vardagsrummet som rymmer såväl matbord och mindre soffgrupp


Balkong

I anslutning till vardagsrummet når vi lägenhetens balkong på 8kvm som är placerad i söderläge vilket ger sol under hela dagen. Njut av utsikten mot den nya parken.


Badrum

Helkaklat badrum med dusch och kombimaskin.

Lägenhet

Byggnad

Förening

Ekonomi

Fastighetsmäklare

Elias Yahyaei

Vill du veta vad din bostad är värd?

Jag eller någon av mina kollegor som är expert på ditt område kontaktar dig gärna för en värdering. Det kostar såklart ingenting och vi kan också starta en värdebevakning.

Hjälp och kontakt
Fastighetsbyrån
Hitta snabbt
Säkerhet och integritet
© Swedbank Fastighetsbyrå AB