
Välkommen till denna fantastiska lägenhet i det populära och nybyggda området Fixfabriken. Med genomgångsläget får du en ljus och luftig känsla i hela lägenheten. Bostaden präglas av exklusiva materialval och efterlämnar en lyxig känsla och med både diskmaskin och tvättpelare blir detta till ett mycket bekvämt boende. Balkongen är belägen i ett härligt sydvästligt läge med utsikt bort över Sannaparken och här finns gott om plats för både balkongmöbler och flertalet växter som trivs i den soldrän...
Välkommen till denna fantastiska lägenhet i det populära och nybyggda området Fixfabriken. Med genomgångsläget får du en ljus och luftig känsla i hela lägenheten. Bostaden präglas av exklusiva materialval och efterlämnar en lyxig känsla och med både diskmaskin och tvättpelare blir detta till ett mycket bekvämt boende. Balkongen är belägen i ett härligt sydvästligt läge med utsikt bort över Sannaparken och här finns gott om plats för både balkongmöbler och flertalet växter som trivs i den soldränkta miljön. Välkommen hem! I närområdet finner du charmiga caféer, butiker och grönområden perfekta för promenader. Med närhet till kollektivtrafik tar du dig enkelt till stadens puls eller varför inte ut till havet på ca 10-15 minuter. En unik möjlighet att få bo i en trivsam och eftertraktad del av Göteborg.
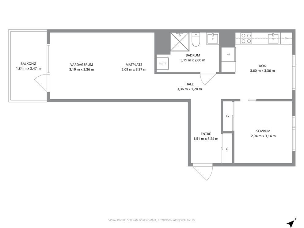
Välkommen in till detta trivsamma boende! Direkt till höger om entrédörren finns en inbyggd skjutdörrsgarderob som gömmer undan dina ytterkläder och skor. Hallytan har även plats för att inreda med avlastningsbord med ytterligare förvaring undertill. På golvet ligger en stilren askparkett som löper genom hela lägenheten.
Vidare in till vänster från hallen nås det lättmöblerade vardagsrummet. Här finns gott om plats att möblera med både soffgrupp, tvmöblemang och en mindre matplats utan att ta för mycket yta i anspråk. Från vardagsrummet nås bostadens härliga balkong!
Välkommen ut till din soliga, sydvästvända balkong – en oas för avkoppling och umgänge. Möblera med utemöbler och gröna växter för att höja trivselfaktorn, balkongen är perfekt för solstunder med vänner och bekanta. Här kan du njuta av solen från tidig lunch och som stannar inpå kvällstimmarna.
Köket signerat Marbodal är både bekvämt och stilrent med sina ljusgråa skåpsluckor och vitt kakel ovan arbetsbänken i kvartskomposit. Köket bjuder på bra arbetsytor, mycket förvaring och har intill fönstret plats för en matgrupp för 4 personer med den lummiga innergården i blickfånget. De maskinella vitvarorna signerade Siemens förser köket med kyl/frys, induktionshäll, ugn, fläkt, integrerad diskmaskin samt en inbyggd mikro.
In till köket ligger det rofyllda sovrummet med målade väggar i en mörkgrön kulör, även sovrummet vetter mot den lugna innergården. Här finns plats för en dubbelsäng med tillhörande sängbord. Goda förvaringsmöjligheter finns i den inbyggda garderoben. Här finns även plats för en byrå för extra förvaring och inredningsyta.
Mitt emot hallen ligger det stora, rymliga badrummet. Ljusa helkaklade väggar och klinker ger en känsla av elegans och lättskött yta. Badrummet är utrustat med en rymlig dusch med vikbara väggar, wc, handfat med underliggande kommod och ovanhängande spegelskåp med belysning samt handdukstork. Dessutom har du en egen tvättpelare som gör tvättiden smidig och effektiv. Upplev den ultimata komforten och funktionaliteten i ditt nya drömbadrum. Golvvärme finns!
Fastighetsmäklare
Åsa Brihs
Jag eller någon av mina kollegor som är expert på ditt område kontaktar dig gärna för en värdering. Det kostar såklart ingenting och vi kan också starta en värdebevakning.