
Längs en slingrande grusväg på ett lantligt och rofyllt läge strax utanför Sjötofta finner ni Sävshultsvägen 2 – ett charmigt hus uppfört i mitten av 1940-talet. Omgivet av ståtliga träd och grönskande granar breder en rymlig trädgårdstomt ut sig och skapar en privat oas, perfekt för både lek, odling och avkoppling. Det avskilda läget ger en unik närhet till naturens skiftande årstider och förstärker den genuina känslan av ett harmoniskt liv på landet. Bostaden har genomgått flera renoveringar ...

Längs en slingrande grusväg på ett lantligt och rofyllt läge strax utanför Sjötofta finner ni Sävshultsvägen 2 – ett charmigt hus uppfört i mitten av 1940-talet. Omgivet av ståtliga träd och grönskande granar breder en rymlig trädgårdstomt ut sig och skapar en privat oas, perfekt för både lek, odling och avkoppling. Det avskilda läget ger en unik närhet till naturens skiftande årstider och förstärker den genuina känslan av ett harmoniskt liv på landet. Bostaden har genomgått flera renoveringar under de senaste åren och erbjuder idag en välplanerad och inbjudande planlösning. Entréplanet rymmer hemmets sociala ytor med ett luftigt vardagsrum, ett ljust och lantligt kök, ett sovrum samt en praktisk gästtoalett. En trappa upp möts ni av två trivsamma och ljusa sovrum samt hemmets badrum. Som pricken över i:et finns ett härligt trädäck där solen strålar från morgon till kväll. Under sommarhalvåret blir detta en självklar samlingsplats för grillkvällar, umgänge och lata dagar i solen. Sjötofta erbjuder en lugn bymiljö med närhet till natur och rekreation. Till både Tranemo och Gislaved är det ungefär 20 minuters bilfärd där ett brett serviceutbud finns att tillgå såsom butiker, skolor, restauranger och övriga samhällsfunktioner. Förbered er gärna genom att: - Åk förbi och bekanta dig med huset och området - Låt oss hjälpa dig med att ordna lånelöfte via vår samarbetspartner Sparbanken Tranemo - Har du ett ägt boende? Boka en kostnadsfri, muntlig värdering av din nuvarande bostad. Kontakta oss på Fastighetsbyrån: 0325- 775 50 eller tranemo@fastighetsbyran.se
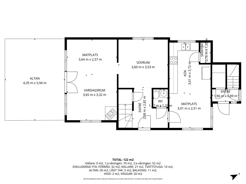
Entréplan
Huset välkomnar via huvudentrén där ni direkt möts av en inbjudande hall med plats för avhängning. Härifrån nås trappan upp till ovanvåningen direkt till vänster samt en praktisk gästtoalett och ett mindre förråd som underlättar vardagens förvaring.
Till höger öppnar hemmet upp sig mot det som verkligen blir bostadens hjärta – det nyrenoverade, lantligt charmiga köket. Här samsas blomstertapet och bröstpanel med klassiska köksluckor och vitrinskåp vilket skapar en varm och tidlös känsla. Köket är fullt utrustat med kyl, frys, ugn, induktionshäll samt diskmaskin och kompletteras av ett generöst skafferi som ger utmärkt förvaring. Vid fönstret ovanför diskhon njuter ni av en rogivande utsikt. Det finns en självklar plats för matbordet intill köksfönstret, där vardag och umgänge får ta plats. I direkt anslutning ligger groventrén, praktiskt placerad med nedgång till källarplanet samt ett extra förråd för smidig förvaring.
Åter i hallen och rakt fram ligger hemmets första sovrum, ett trivsamt rum med plats för dubbelsäng, sängbord och även skrivbord för den som önskar. Innanför öppnar sig hemmets ljusa och generösa vardagsrum där stora ytor ger plats för både soffgrupp, TV-möbel och matsalsdel. Härifrån leder dubbeldörrarna ut till altanen som under sommarhalvåret förlänger sällskapsytorna och skapar en härlig förbindelse mellan inne och ute.
Ovanvåning
På ovanvåningen möts ni av en möblerbar hall med fin utsikt mot trädgården. Här uppe finns två sovrum, båda med goda förvaringsmöjligheter i garderober och sidovindar som gör det enkelt att hålla ordning.
Det ena, något större sovrummet erbjuder dessutom utgång till balkongen under tak – en härlig plats att slå sig ner och njuta av utsikten över den omgivande grönskan.
Här uppe finns hemmets badrum. Utrustat med toalett, handfat med kommod och badkar. Med praktiska badrumsskåp finns gott om förvaring vilket gör rummet både funktionellt och lättskött i vardagen.
Källare
Källarplanet nås smidigt inifrån huset via groventrén och erbjuder bra möjligheter för förvaring, hobbyverksamhet eller extra utrymme efter behov. Här finns även en funktionell tvättavdelning som gör vardagens sysslor både enkla och smidiga.
Fastighetsmäklare / Franchisetagare
Johan Karlsson
Jag eller någon av mina kollegor som är expert på ditt område kontaktar dig gärna för en värdering. Det kostar såklart ingenting och vi kan också starta en värdebevakning.