
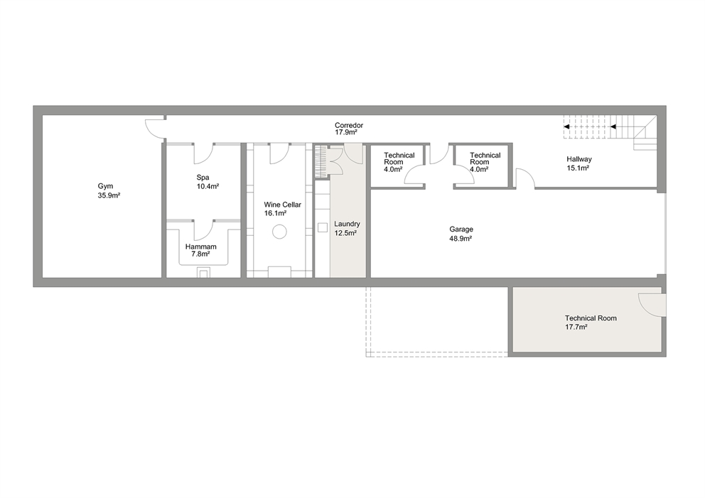
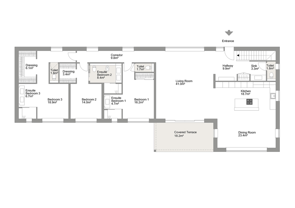
Imagine investir em Faro, a cidade que mais cresce no Algarve, onde o sol brilha mais de 300 dias por ano. Descubra um canto do paraíso com total privacidade. A Quinta de Faro está localizada a poucos minutos do centro da cidade e perto de uma das mais belas praias que o Algarve tem para oferecer. Vão construídas cerca de 30 moradias de luxo com 3 a 5 quartos, 1 ou 2 pisos, e com áreas que variam de 348 m2 a 380 m2. Prontas em 2023 Com uma arquitetura moderna e elegante, cada divisão é otimiza...
Imagine investir em Faro, a cidade que mais cresce no Algarve, onde o sol brilha mais de 300 dias por ano. Descubra um canto do paraíso com total privacidade. A Quinta de Faro está localizada a poucos minutos do centro da cidade e perto de uma das mais belas praias que o Algarve tem para oferecer. Vão construídas cerca de 30 moradias de luxo com 3 a 5 quartos, 1 ou 2 pisos, e com áreas que variam de 348 m2 a 380 m2. Prontas em 2023 Com uma arquitetura moderna e elegante, cada divisão é otimizado para atender às suas necessidades de conforto: amplas salas com vista para a Ria Formosa e o mar, cozinhas modernas totalmente equipadas, 3 a 4 quartos espaçosos com casas de banho privativas e closet. Todas as moradias têm uma piscina privativa de 49 m2 e um magnífico jardim mediterrâneo e possibilidade de uma adega, sauna e ginásio. Descubra Faro, o local ideal para viver entre o mar e a serra. Enquanto o frio do inverno atinge a maioria dos países europeus, o sol continua a brilhar no Algarve. É o clima ameno, aliado à beleza natural da sua paisagem, que torna esta região de Portugal um destino apetecível durante todo o ano. Os seus duzentos quilómetros de costa ladeados por magníficas praias de areia, os seus conceituados campos de golfe, a sua gastronomia requintada e a oferta de muitos desportos aquáticos são trunfos que irão agradar aos estrangeiros mais exigentes.
Franqueado
Stefan Nymberg
Preencha o formulário com os seus detalhe e nós entraremos em contacto.