
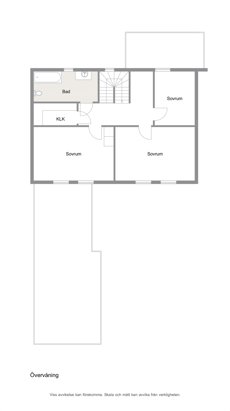
Välkommen till detta friköpta radhus på populära Bulltofta – ett hem med stor potential att förvandlas till ditt alldeles egna drömboende! Bostaden erbjuder generösa ytor fördelade på 5 rum, där planlösningen är både genomtänkt och funktionell. På entréplan möts du av den sociala delen med gott om plats för umgänge och familjeliv, medan ovanvåningen erbjuder en mer privat sfär med tre sovrum, badrum samt en praktisk klädkammare. Huset har två badrum, vilket underlättar vardagen för den större ...
Välkommen till detta friköpta radhus på populära Bulltofta – ett hem med stor potential att förvandlas till ditt alldeles egna drömboende! Bostaden erbjuder generösa ytor fördelade på 5 rum, där planlösningen är både genomtänkt och funktionell. På entréplan möts du av den sociala delen med gott om plats för umgänge och familjeliv, medan ovanvåningen erbjuder en mer privat sfär med tre sovrum, badrum samt en praktisk klädkammare. Huset har två badrum, vilket underlättar vardagen för den större familjen, samt tillgång till både förråd och garage – perfekt för extra förvaring och bekvämlighet. Här bor du i ett friköpt radhus med möjlighet att sätta din egen prägel och skapa ett hem helt efter dina önskemål. De dubbla trädgårdarna, på både fram- och baksida, ger dig solchanser från morgon till kväll. På baksidan finns ett härligt trädäck och ett uterum som förlänger utesäsongen och skapar en perfekt plats för avkoppling eller sociala tillställningar. Fastigheten är utrustad med solceller (för närvarande leasade – kontakta mäklaren för mer information), vilket bidrar till en mer energieffektiv vardag. Bulltofta är ett uppskattat och tryggt område, perfekt för familjen. Här har du närhet till parker, grönområden, skolor, affärer och goda kommunikationer – allt som förenklar vardagen och höjer livskvaliteten. Ett hem med stora möjligheter i ett område att trivas i – varmt välkommen på visning!
Fastighetsmäklare
Nikola Milakovic
Jag eller någon av mina kollegor som är expert på ditt område kontaktar dig gärna för en värdering. Det kostar såklart ingenting och vi kan också starta en värdebevakning.