
Med ett grymt bra läge i Ropnäs ligger denna lite undangömda pärla och väntar på sin nya ägare. Fastigheten ligger som sista hörntomt på väg utan genomfartstrafik och det är endast en kort promenad om cirka 1 kilometer ned till områdets bad- och båtplats i saltsjön. Tomten angränsar till allmänning på tre sidor och är 2.251 kvadratmeter bestående av naturtomt. Sportstugan har ett privat läge och här finns en härlig veranda med tak i nock och gott om plats för lata dagar i sommarsolen. Stugans 75...
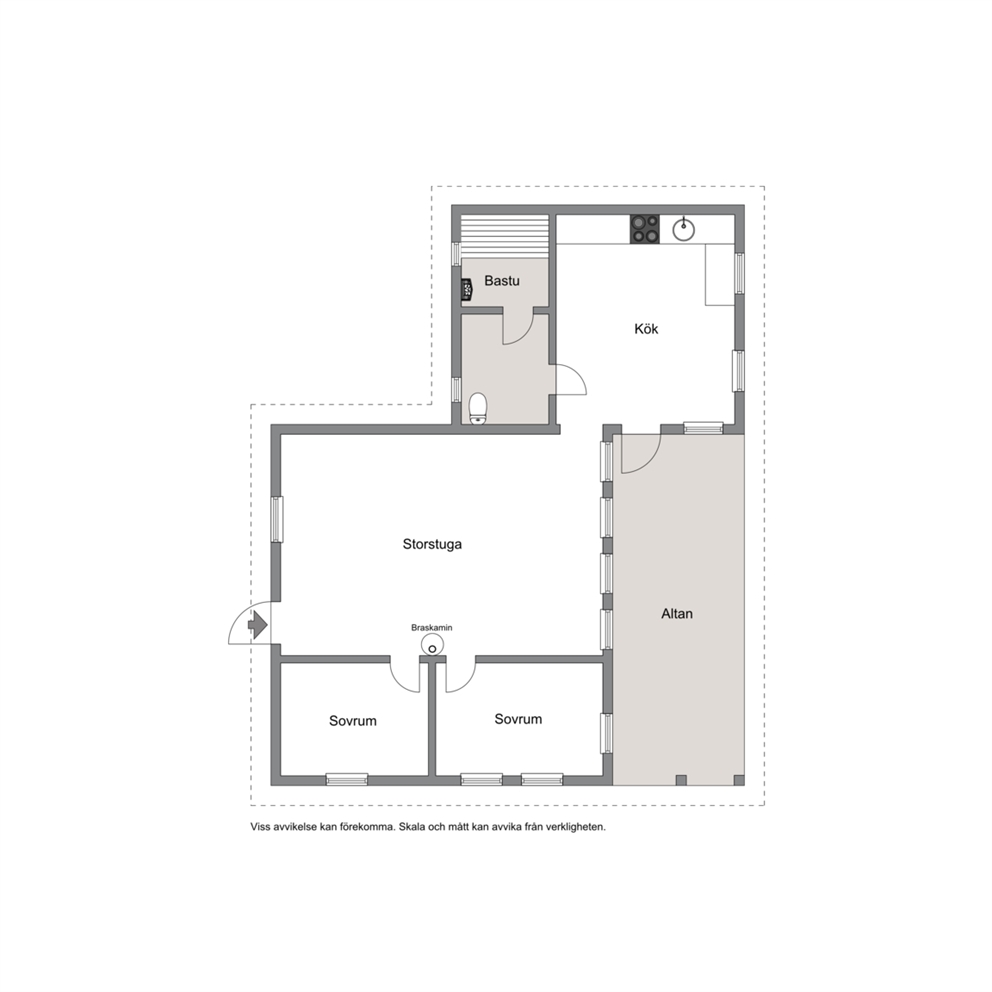
Med ett grymt bra läge i Ropnäs ligger denna lite undangömda pärla och väntar på sin nya ägare. Fastigheten ligger som sista hörntomt på väg utan genomfartstrafik och det är endast en kort promenad om cirka 1 kilometer ned till områdets bad- och båtplats i saltsjön. Tomten angränsar till allmänning på tre sidor och är 2.251 kvadratmeter bestående av naturtomt. Sportstugan har ett privat läge och här finns en härlig veranda med tak i nock och gott om plats för lata dagar i sommarsolen. Stugans 75 kvadratmetrar fördelas över kök med egen utgång till verandan, vardagsrum med braskamin, två sovrum och ett utrymme för separett och bastu. Kom på visning eller åk och titta själva först - men tala gärna om för mäklaren när ni varit förbi!
Myrstigen 12 ger er:
- kök med matplats och egen utgång till veranda
- veranda med tak i nock för lata dagar
- vardagsrum med braskamin
- två sovrum
- separett och bastu
- cirka en kilometer till bad- och båtplats i saltsjön
Säljaren är ett dödsbo och önskar lämna kvar en hel del av inventarierna som nu finns i stugan och låta flyttstädning utgå.
Kök med egen ingång till stor och luftig veranda under tak i nock. I kök finns elspis, kyl/frys och diskho samt arbetsbänk. Köket har fönster i två väderstreck och plats för ganska rejäl matmöbel och golvet är av trä.
Vardagsrum med furugolv och täljstenskamin samt egen bakdörr till stor farstubro. Väggar och tak är av panel och lämpar sig väl för att bli vitmålade för den som vill ha ett ljusare och luftigare intryck. Här finns plats både för tv-hörna och läshörna. Från vardagsrummet nås de två sovrummen.
Sovrum med furugolv och målade väggar samt fönster i två väderstreck och en elcentral.
Sovrum med furugolv och målade väggar.
Utrymme stort nog för att i framtiden kunna husera en dusch, men nu finns endast utedusch att tillgå. Här finns en separett och en vedeldad bastu.
Fastighetsmäklare
Jonas Nordwall
Jag eller någon av mina kollegor som är expert på ditt område kontaktar dig gärna för en värdering. Det kostar såklart ingenting och vi kan också starta en värdebevakning.